Bernard Leenestraat 111 Tilburg

5026CA Tilburg € 495.000

Een UNIEKE kans om in de populaire wijk WILLEMSBUITEN te gaan wonen.

Op zoek naar een woning die van alle gemakken is voorzien? Zoek niet verder, want dit zou zomaar eens jouw droomhuis kunnen zijn! Het in 2020-2021 gebouwde huis is instapklaar en heeft een woonoppervlak van 127,3 m2. Met drie netjes afgewerkte slaapkamers, een moderne keuken, keurig sanitair en een tuin met veel privacy is dit echt een woning om verliefd op te worden. Maar niet alleen wat we treffen in het huis is fantastisch, je woont ook op een geweldige locatie met alle denkbare voorzieningen in de nabijheid. Parken, scholen, winkels, ov-verbindingen en uitvalswegen: je vindt het allemaal op kleinere afstand.
Kortom: een woning waar jouw woondromen werkelijk kunnen worden!

Over de ligging en de buurt:
Deze instapklare woning (2020-2021) met vrij uitzicht is gelegen in de Bernard Leenestraat in Tilburg. Bernard Leenestraat 111 ligt in een zeer gewilde, vriendelijke buurt. Je woont op korte fietsafstand van Stadspark Oude Dijk en het Kromhoutpark. Deze parken bieden jou wandel-, fiets- en recreatiemogelijkheden. In de dichte omgeving van de woning vind je ook vele sportverenigingen, waaronder een voetbalclub, tennis- en padelclub en atletiekvereniging.

Het bruisende centrum van Tilburg is ook met de fiets bereikbaar. De binnenstad biedt jou van een groot en divers winkelaanbod, voor ieder wat wils. Van grote landelijke ketens en lokale winkels tot kleine boetiekjes: je vindt het hier allemaal. Naast de vele winkels zijn er in het centrum ook talloze leuke restaurants en cafés te vinden. Ook kun je er terecht voor een bezoekje aan het theater of de bioscoop. Het dichtstbijgelegen station is net als het centrum op fietsafstand te vinden. Dit treinstation heeft verhoogde verbindingen met onder andere Eindhoven, 's-Hertogenbosch, Amsterdam centraal en Den Haag.

De kleinere supermarkt, basisschool en het voortgezet onderwijs zijn slechts een paar minuten fietsen. De kinderopvang en bushalte zijn lopend bereikbaar. De uitvalswegen zijn vanaf de woning snel te bereiken, je woont dichtbij de uitvalsweg A58. Safaripark Beekse Bergen ligt op slechts 10 minuten rijden en de binnenstad van Den Bosch bereikt u in slechts 40 minuten.

Indeling van de woning:

Begane grond:
De kleine voortuin biedt toegang tot de voordeur van deze mooie nieuwbouwwoning. Achter de voordeur vind je de entreehal met schitterende toiletruimte met zwevend toilet en fonteintje, meterkast, trapopgang naar de eerste verdieping en toegang tot de grote woonkamer.

De muren en het plafond zijn in de woonkamer strak afgewerkt en de ruimte is voorzien van een mooie tegelvloer. De ruimte kenmerkt zich door de grote raampartij aan de achterzijde. Deze raampartij zorgt voor een groot lichtinval in de ruimte en heeft openslaande deuren naar de achtertuin. In de woonkamer heb je extra kastruimte om spullen op te bergen.

Aan de voorzijde van de woning vind je de open keuken. Deze keuken is te herkennen aan de lichtgrijze keukenkastjes en het donkergrijze werkblad. Je behandelt hier de volgende apparatuur: vaatwasser, oven, magnetron, inductie kookplaat, koelkast, vriezer en koffieautomaat. De keuken is voorzien van veel bergruimte.

Eerste verdieping:
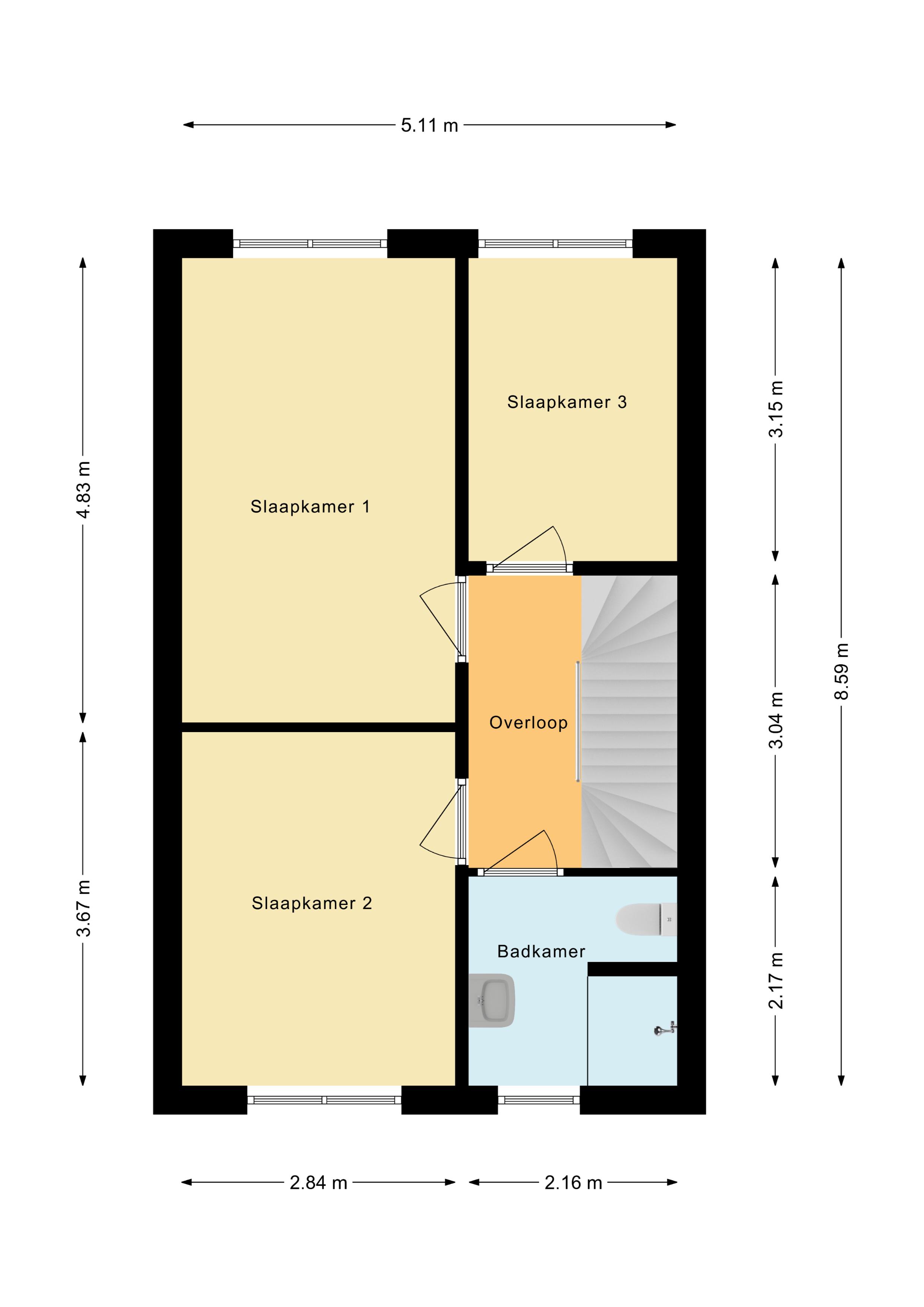
De gestoffeerde trap in de entreehal biedt toegang tot de overloop van deze verdieping. Hier tref je de trapopgang naar de tweede verdieping aan. Daarnaast zijn via de overloop de drie slaapkamers en de badkamer te bereiken.

Van de drie slaapkamers op de eerste verdieping vind je twee aan de achterzijde en één aan de voorzijde. Stuk voor stuk zijn de ruimtes modern afgewerkt. De slaapkamers zijn verdeeld over een grijze PVC-laminaatvloer. Je geniet in alle slaapkamers van veel daglicht door de grote raampartij. De badkamer van deze woning grenst aan de slaapkamer aan de voorzijde. De badkamer is netjes betegeld en heeft een zwevend toilet, badmeubel met wastafel en inloopdouche.

Tweede verdieping:
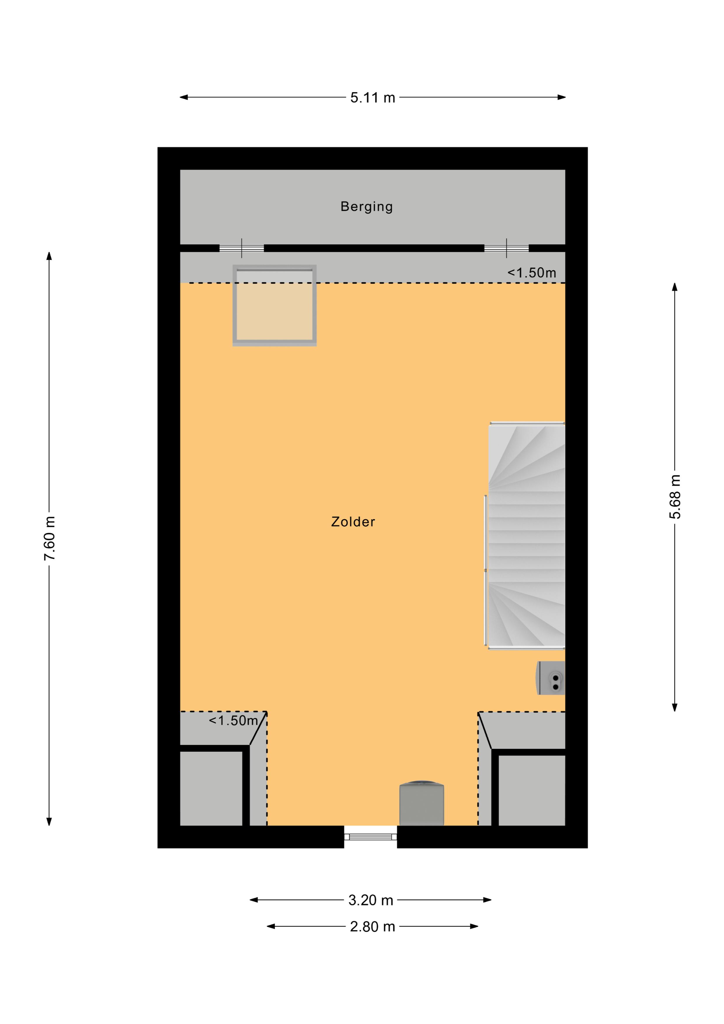
Via de trap bereik je de tweede verdieping van deze woning: de zolder. De zolder is zeer ruim en heeft daardoor volop mogelijkheden. Je kunt hier een vierde slaapkamer realiseren, maar het is ook een optie om de ruimte te gebruiken als werk- of hobbykamer. De muren en het plafond zijn hier strak afgewerkt en op de vloer ligt PVC-laminaat.

Hieronder zijn op deze verdieping de wasmachine- en drogeraansluitingen te vinden. Aan de achterzijde heb je toegang tot een berging om spullen op te bergen.

tuin:
De woning heeft een goed verzorgde achtertuin, dies betegelde delen een deels groen is. Het betegelde terras biedt voldoende ruimte om er een loungeplek van te maken. Je geniet in deze tuin van veel privacy en rust, wilt door de afscherming aan beide zijden is het hier optimaal beschermd. In deze netjes onderhouden tuin is het bij mooi weer dan ook heerlijk toeven. Aan de achterkant beschik je over een houten berging. In deze houten berging met elektra kun je spullen opbergen of fietsen stallen. De tuin is bereikbaar via een achterom.

Parkeren:
Er is parkeergelegenheid rond het huis.

Kenmerken van de woning:
• Instapklare woning met vrij uitzicht
• Drie slaapkamers, moderne keuken en uitstekend sanitair
• Ruime zolder met volop mogelijkheden
• Vloerverwarming op de begane grond
• Netjes onderhouden tuin
• Gelegen in een fijne, kindvriendelijke buurt
• Centrum van Tilburg en treinstation op fietsafstand
• Veel voorzieningen in de nabijheid
• 10 jaar garantie middels certificaat
• Energielabel: A
• Volledige eigendom