Cevennenstraat 12, Tilburg

5022 MB Tilburg € 515.000

LET OP: We hebben er weer één. Hoekwoning met 4 slaapkamers uit 2017 op een toplocatie in één van de meest gewilde nieuwbouwwijken ''Zuiderpark''. Niet klussen maar ook nog eens instap klaar. Deze verwarmde woning is voorzien van dakisolatie, muurisolatie, vloerisolatie, triple A glas, vloerverwarming op de begane grond en zonnepanelen. Hierdoor beschikt de woning over een energielabel A. Luxe keuken, moderne en ruime badkamer en een airco op zowel de ouderslaapkamer als de zolderkamer. Heerlijk slapen dus in de steeds warmer wordende zomers.

De ligging van de woning is ideaal. Een rustige en kindvriendelijke straat met groenstroken en voldoende parkeergelegenheden, maar op korte afstand van vele voorzieningen. Zo is het bruisende stadscentrum met al haar (winkel)voorzieningen en gezellige terrasjes binnen 10 minuten met de fiets te bereiken en liggen scholen en het recreatiegebied “Stappegoor” met onder andere de Jumbo Foodmarkt, bioscoop, zwembad en sportvoorzieningen om de hoek.
Het fraaie Leijpark en de populaire Piushaven zijn tevens nabij gelegen.
Diverse uitvalswegen richting de steden Breda, Eindhoven en 's-Hertogenbosch zijn snel en gemakkelijk te bereiken.

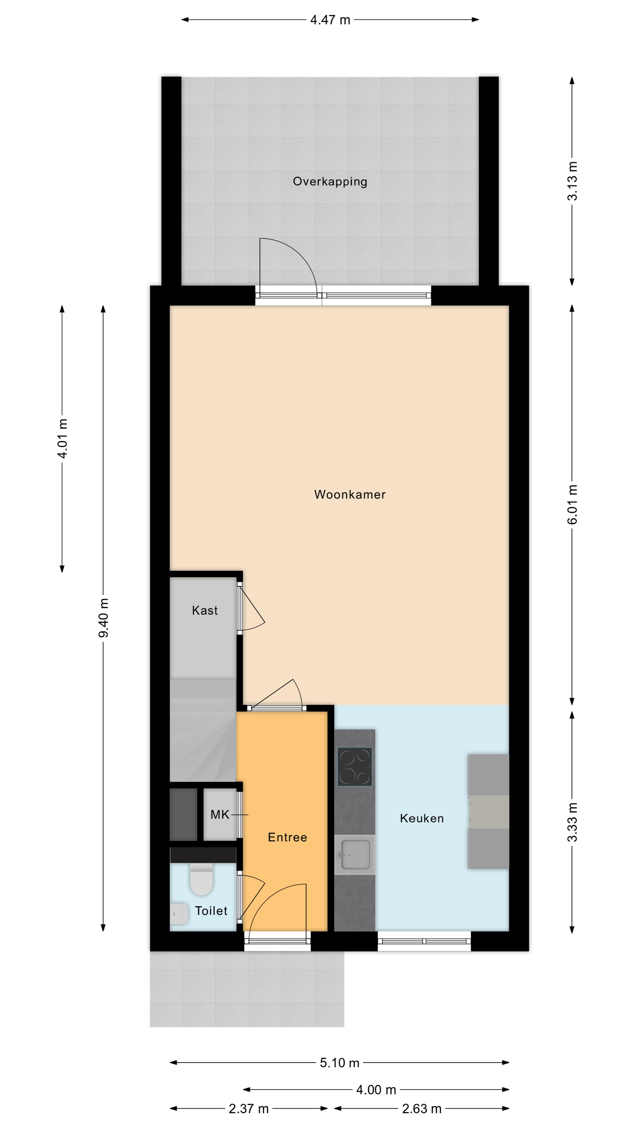
BEGANE GROND:

Entree, hal met uitgebreide meterkast en een moderne toiletruimte voorzien van een vrij hangend toilet met fontein.
De hal geeft toegang tot de woonkamer en trapopgang naar de eerste verdieping. De pvc vloer is gelegd in houtmotief en loopt mooi door naar de woonkamer. De volledige begane grond is voorzien van vloerverwarming.

Woonkamer: Bij binnenkomst valt meteen op hoe ruim deze living is. Doordat de woning aan de achterzijde is uitgebouwd een heerlijke woonkamer. Hier is voldoende ruimte voor een grote eettafel en een royale zithoek. Het grote raam met tuindeur in de achtergevel, zorgt voor veel daglicht en een gezellig contact met de achtertuin. Via de woonkamer heb je ook toegang tot de ruime bergkast onder de trap naar de eerste verdieping. Alle kozijnen zijn van kunststof, dus onderhoudsvriendelijk.

Keuken: De luxe en moderne keuken in parallelle opstelling bevindt zich aan de voorzijde van de woning. In het kook en spoelgedeelte vind je een vi vaatwasser, een RVS afzuigkap en brede inductie kookplaat. In de kastenwand zit een grote koelkast met combi-oven. Het keukenblad is van composiet.

EERSTE VERDIEPING:

Via de vaste trap bereik je de eerste verdieping. Hier bevinden zich 3 slaapkamers en de badkamer. De grootste slaapkamer met airco bevindt zich aan de achterzijde van de woning. Er is ruimte genoeg voor het plaatsen van een royaal tweepersoonsbed en een grote garderobekast. Op de vloer ligt ook dezelfde pvc vloer die mooi doorloopt naar de overloop en de andere 2 slaapkamers. De zeer ruime en moderne badkamer bevindt zich aan de voorzijde van de woning en is voorzien van een ruime douchecabine, zwevend toilet en een brede wastafel met meubel. Voldoende ruimte dus om alles netjes op te bergen.

TWEEDE VERDIEPING:

Via de vaste val bereik je de tweede verdieping. Hier vind je nog 1 slaapkamer. Via de royale overloop heb je toegang tot de voorzolder, de aansluitingen voor de wasmachine en de droger en toegang tot een supergave slaapkamer met airco. Elke puber zou dit wel willen. Achter de schotten is ook nog bergruimte aanwezig. Boven de slaapkamer is nog een afgesloten ruimte voor het opbergen van de bekende koffers en kerstspullen.

TUIN:

De achtertuin van deze woning is volledig aangelegd met bestrating, overkapping en strakke houten schuttingen. Achter in de tuin staat een ruime berging voor het opbergen van je tuinspullen en het parkeren van je fietsen.

- Bouwjaar 2017;
- Perceeloppervlak 167 m2;
- Woonoppervlak 116,9 m2;
- Inhoud 417 m3;
- NEN 2580 meetrapport;
- Luxe keuken en badkamer;
- Begon voorzien van vloerverwarming;
- Voorzien van zonnepanelen;
- Een rustige maar ideale locatie nabij het stadscentrum en diverse voorzieningen.
- In de directe omgeving is voldoende gratis parkeergelegenheid aanwezig.
- Uitbouw aan de achterzijde;
- Overkapping in de achtertuin;
- Voorzien van 2 airco's;
- Kunststof kozijnen;
- 4 slaapkamers;
- Energielabel A;
- Schoolvoorzieningen en sportcentra om de hoek;
- Winkelcentrum Stappegoor en diverse uitvalswegen in directe nabijheid.

Wil je deze mooie instapklare woning bezichtigen?
Pak dan nu je kans op dit pareltje.
Bel of mail voor een afspraak:

Overzicht

Vraagprijs € 515.000,00
Woonoppervlakte 117 m²
Perceeloppervlakte 167 m²
Kamers 4
Toestand Te Koop
Bouw 2017