De Koopvaardij Piushaven bouwnr. 6

5017 AN Tilburg € 695.000

De luxe koopappartementen Piushaven zullen u verbazen

Middenin het centrum van Tilburg aan het populaire Piushavengebied wordt een hoogwaardig appartementencomplex gerealiseerd, genaamd De Koopvaardij. Een uniek complex wat de binnenstad verbindt met dit havengebied. Door de gehele transformatie van deze omgeving ontstaat er een prachtig nieuw woongebied op een toplocatie aan het water.

Het appartementencomplex De Koopvaardij biedt een grote diversiteit aan qua woningafmetingen en prijzen. Tel daar het prachtige uitzicht over het Piushavengebied bij op en dit wordt een fantastische nieuwe plek om te wonen!

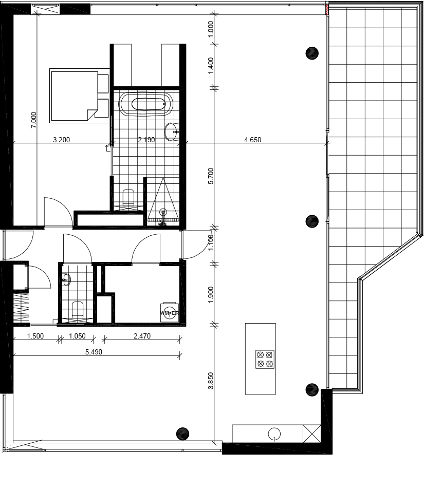
Ziet u zichzelf al zitten? Op een riant balkon de zon zien opkomen vanaf de 2e verdieping. Dit zijn met recht de ‘parels’ van De Koopvaardij te noemen. Dit appartement is gelegen op de 1e verdieping. Dagelijks genieten van het schitterende uitzicht over de Piushaven, wat de woonbeleving compleet maakt. Uw nieuwe appartement aan de Piushaven geeft u de maximale privacy en woonplezier!

De Piushaven appartementen bieden u, met 164 vierkante meter woonoppervlakte, de meeste ruimte. Uniek aan deze appartementen zijn de lichte en ruime kamers en het riante balkon met direct uitzicht over de Piushaven. De grote ramen zorgen voor een zee aan licht en geven deze appartementen een fantastisch frisse energie. Vanaf € 645.000 k.k..

Overdracht 

Vraagprijs € 695.000 v.o.n.
Aangeboden sinds  1 okt 2019
Aanvaarding  in overleg