Doesburgstraat 67

5043 GB Reeshof € 410.000

Op zoek naar ruimte, geen zin in te klussen, graag energielabel A en op een gewilde locatie? We hebben weer een pareltje in de verkoop. Wie het breed heeft laat het breed hangen gaat zeker op voor deze woning. Aan de voorzijde lijkt het namelijk of je 2 huizen hebt. Extra ruimte heb je dan ook: een extra ruime woonkamer en maar liefst 4 slaapkamers op de 1e verdieping. Ook nog instap klaar, energielabel A en alles smaakvol uitgevoerd. Ideaal voor starters, maar ook voor grotere gezinnen.

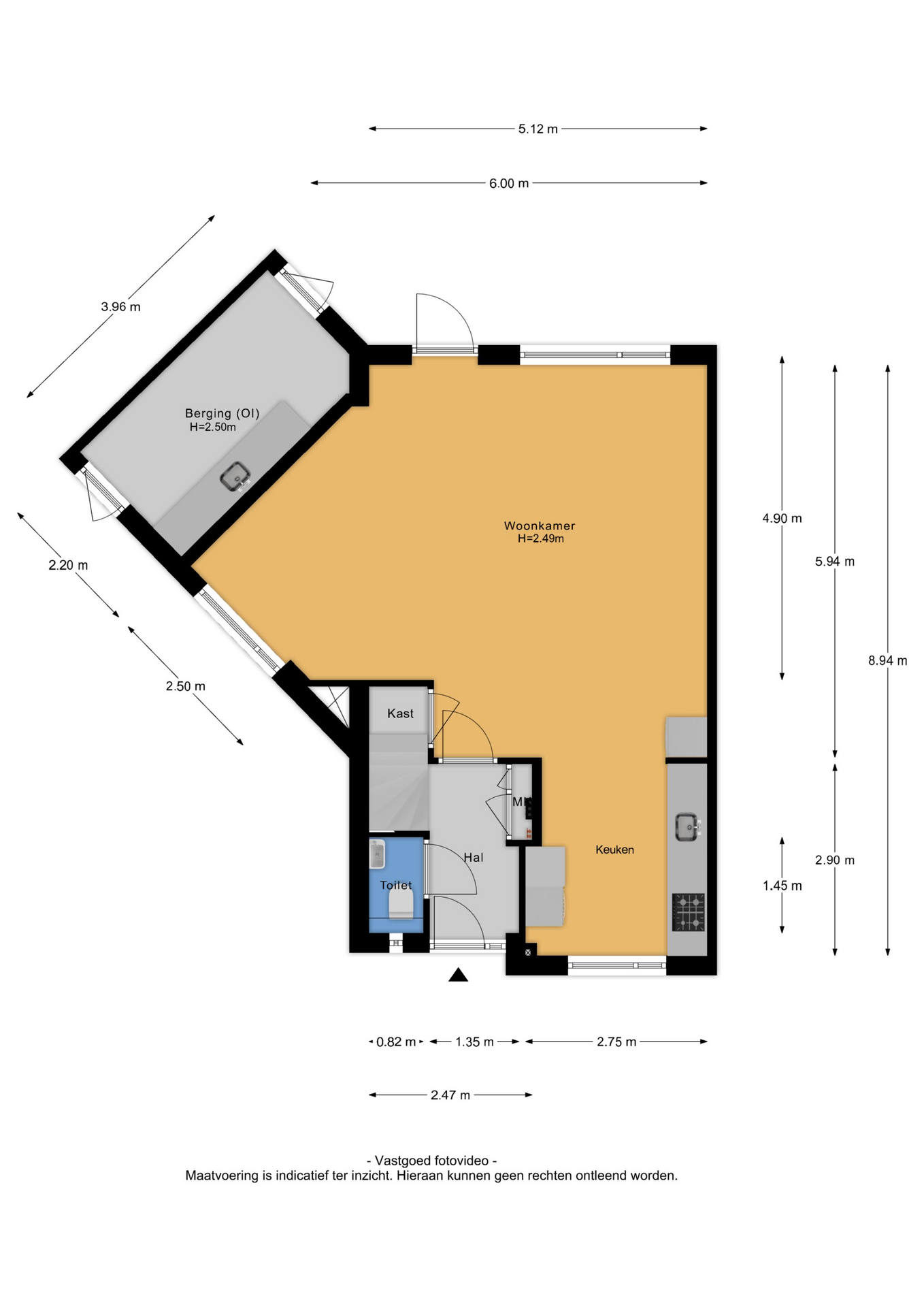
Naast deze aantrekkelijke punten is de woning gelegen in stadsdeel Huibeven en omringt zich door veel groen, vele singels en de voorzieningen die je in de nabijheid aantreft. Het winkelcentrum aan het Buurmalsenplein is op steenworp afstand gelegen, evenals het openbaar vervoer, een medisch centrum en scholen. Diverse sportverenigingen zoals voetbal, tennis en korfbal zijn op fietsafstand gesitueerd. Via de Bredaseweg en Dongenseweg ben je binnen luttele minuten in het stadscentrum van Tilburg en de diverse uitvalswegen richting Breda en Eindhoven. De woning is voorzien van dakisolatie, muurisolatie, vloerisolatie en dubbele beglazing. Tevens voorzien van woning scheiden spouwmuren, wat een optimale geluidsisolatie biedt en de beschikking over een groen energielabel A. Indeling Via de hal met trapopgang en meterkast zijn de woonkamer en het toilet te bereiken. De toiletruimte is voorzien van een hangend toilet en fontein. Door de uitbouw aan de zijkant is de woonkamer 43 m2 inclusief keuken en oogt deze veel ruimer dan je zou verwachten en ook lichter. Je hebt nu namelijk lichtinval van 3 zijdes. De vloer is voorzien van een laminaatvloer en de wanden en plafond zijn voorzien van strak stucwerk. De airco maakt het geheel af. Via de achterdeur is de tuin bereikbaar. Aan de voorzijde is de semi-open keuken gelegen. Deze is modern en voorzien van een grote koelkast, inductie kookplaat, afzuigkap, oven, combimagnetron en vaatwasser. De inpandige berging is vanaf de voorzijde bereikbaar en is voorzien van plavuizen vloer en elektra. Tevens is er een aanrecht met gootsteen en onder- en bovenkasten geplaatst. Via de deur aan de achterzijde is de achtertuin bereikbaar. Eerste verdieping Via de hal en dichte trap bereik je de eerste verdieping met maar liefst 4 slaapkamers en een badkamer. De grootste en meest sfeervolle slaapkamer van 16 m2 is gelegen in het aangebouwde huis. De andere slaapkamers van 13 m2, 8 m2 en 6 m2 zijn gelegen in de ''grote woning". Alle slaapkamers zijn voorzien van een moderne laminaatvloer en strak stucwerk. De mooie badkamer in grijze kleurstelling is geheel betegeld en voorzien van ligbad met douchegelegenheid en een thermostaatkraan, hangend toilet, wastafelmeubel met mengkraan en een design radiator. Tweede verdieping Via de open trap bereik je de zolder. Deze is ruim en voorzien van een velux raam en aansluiting voor wasmachine en/of droger. Een ideale ruimte om een 5e slaapkamer te realiseren. Tuin De verzorgde en onderhoudsvriendelijke achtertuin is 8 meter diep en voorzien van mooi kunstgras en een houten erfafscheiding. Ben u geen tuinier, maar wilt u wel graag genieten van de zon, dan zit u hier goed. De tuin ligt op het westen en er kan op alle momenten van de dag volop van de zon worden genoten. De inpandige berging is 9 m2 en is vanaf de voorzijde bereikbaar en voorzien van een plavuizen vloer en elektra. Ook is er een aanrecht met gootsteen met onder en bovenkasten geplaatst. Via een deur aan de achterzijde is de achtertuin bereikbaar. Bijzonderheden - Toplocatie in de Reeshof - Verrassend brede, extra ruime woning - Woonkamer met uitbouw en keuken 43 m2 - 4 slaapkamers op de eerste verdieping en ruime zolder - Woning voorzien van dak, gevel en vloerisolatie - Mooie keuken en badkamer - Binnenkant geschilderd in 2024 - Inhoud van de woning bedraagt 441,85 m³ (conform NEN 2580 meetrapport op locatie ingemeten)* - Gehele woning voorzien van strak stucwerk - Airconditioning - Energielabel A - Ruime parkeergelegenheid voor de deur - Instap klaar - Winkels, scholen en de diverse uitvalswegen op korte afstand gelegen Wil je deze mooie woning bezichtigen? Bel of mail ons dan voor een afspraak: Tel: 013-7620220 of stuur een mail: * De NEN 2580 meetnorm is een eenduidige meetnorm, waarbij met bepaalde richtlijnen rekening gehouden wordt. Zo wordt o.a. een zolder zonder vaste trap of met een lichtoppervlakte (bv dakraam) kleiner dan 0,5 m² niet tot de woonoppervlakte gerekend. Hierdoor kan de woonoppervlakte soms kleiner lijken dan de daadwerkelijke vloeroppervlakte en kleiner lijken dan bij vergelijkbare woningen waar de makelaar de meetnorm niet toe heeft gepast. Ondanks het feit dat de meetnorm verplicht is, hanteren niet alle makelaars consequent de norm. MTB Makelaardij laat haar woningen inmeten door een erkend bedrijf. Het meetrapport van deze woning is dan ook, indien gewenst, ter inzage.