Dorpsstraat 51 Wagenberg

4845CD Wagenberg € 300.000

Gelegen in het heerlijke Brabantse dorpje Wagenberg is deze sfeervolle en karakteristieke vrijstaande woning met een aangebouwde garage en kantoor, in een mooie straat nabij het centrum van het dorp.
De woning is goed onderhouden en de authentieke details zijn behouden gebleven, waaronder de schuiframen, diverse glas-in-loodramen en de lambrisering in de hal.
Ook het buitenleven is goed vertegenwoordigd met een dakterras en een onderhoudsvriendelijke tuin gelegen op het noordoosten.

Omgeving
Het dorp Wagenberg ligt tussen Terheijden en Made in. Wagenberg is als dorp altijd verbonden geweest aan Terheijden en na de gemeentelijke herindeling in 1997 net als Terheijden onderdeel van de gemeente Drimmelen en telt ongeveer 2200 inwoners.

Het dorp is eigenlijk opgebouwd uit diverse wegen, straten, dijken en paden die samen komen in een kleine kern. De doorgaande wegen, zoals de Dorpsstraat met Withuisstraat en Brouwerijstraat en de Wagenstraat zijn eeuwenoud. In het dorp zijn een paar winkels voor de eerste dagelijkse boodschappen waaronder een bakker en een kleine kruidenierswinkel. Er is een basisschool en voor ontspanning is er een voetbal en handbalclub.

De snelwegen A27 en A16 liggen nog geen 5 minuten rijden met de auto en Breda centrum bereik je binnen een kwartiertje.

Bent u ook nieuwsgierig geworden; Bel of mail dan voor een bezichtiging en laat u verrassen !!

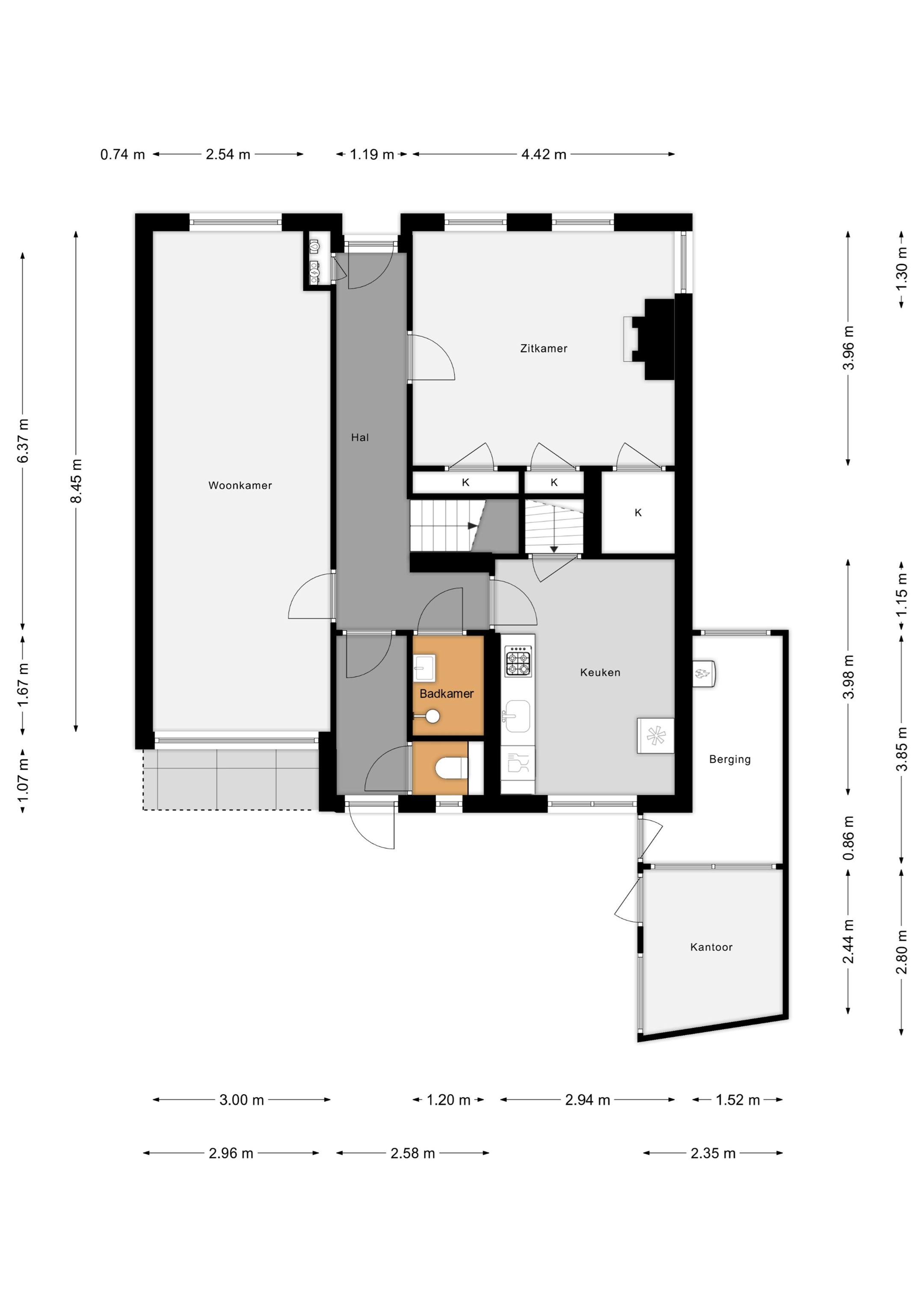
Indeling
Het eerste wat opvalt is de prachtige voorgevel van deze vrijstaande woning. Deze is in 2020/2021 geheel geschilderd. Bij binnenkomst via de voordeur met glas in lood raam komt u in de hal met tegelvloer en lambrisering. De muren en plafond zijn gedeeltelijk voorzien van behang, tegelwerk en strak stucwerk. Alle deuren op de begane grond zijn opdekdeuren. In de hal bevindt zich ook de netjes weggewerkte meterkast. Links komt u in de sfeervolle zitkamer waar u veel tijd zult spenderen. De zitkamer is voorzien van een mooie laminaatvloer, 2 schuiframen met glas in lood en horren, balkenplafond en een authentieke houtkachel. De zitkamer is tevens voorzien van 3 inbouwkasten, waarvan de grootste inbouwkast nu dient als computerkamertje.
Aan de rechterkant van de hal bevindt zich de ruime woonkamer met laminaatvloer. De verwarmingen zijn netjes afgewerkt met een houten ombouw. De muren zijn aan de onderkant bedekt met behang en de bovenkant, net als het plafond, is voorzien van strak stucwerk. Ook hier een schuifraam met glas in lood en hor aan de voorkant.
Op de begane grond bevinden zich ook het toilet, badkamer en de keuken met kelder. Het toilet is netjes, geheel betegeld en heeft een raampje. De badkamer is mooi afgewerkt, ook geheel betegeld en voorzien van lichtkoepel, douche en wastafel met 2 lades. De leefkeuken is ruim en de keuken zelf is gemaakt van hout. De inbouwapparatuur bestaat uit een vaatwasser, 5 pits gaskookplaat en afzuigkap. Via een deur in de keuken bereikt u via een trap de grote kelder voorzien van een tegelvloer en een raam voor natuurlijke ventilatie.

Via de achterdeur met glas in lood bereikt u de tuin. Deze geeft toegang aan het kantoor met aangrenzend de zeer ruime bijkeuken waar ook de CV ketel zit ( Remeha 2018 ). Voorheen was dit de 2e garage.

Eerste verdieping
Via de open houten trap bereikt u de ruime overloop met balustrade. Hier bevinden zich 3 slaapkamers met laminaatvloer. Deze zijn allen voorzien van strakke muren en plafond. De dakkapel, die over de gehele breedte van de woning loopt, is geheel vernieuwd. De woning heeft nog een verrassing voor u want via een deur bereikt u het immense dakterras, 4,14 x 8,95 m, waar het heerlijk vertoeven is met een prachtig uitzicht.

Tweede verdieping
Door middel van een luik op de eerste verdieping komt u op de bergzolder die zeer nuttig is als opslagruimte.

Tuin
De tuin is geheel betegeld, dus onderhoudsvrij. Via 2 mooie houten poorten bereikt u de achter gelegen straat. Vanuit de tuin heeft u ook toegang tot het kantoor met aangrenzend de bijkeuken en de garage.