Groeseindstraat 67

5014 LV Tilburg € 289.000

Op een ideale locatie, in de sfeervolle wijk Oud-Noord, vlak bij het stadscentrum en Spoorzone, vind je deze mooie eengezinswoning.
Je woont hier op korte loopafstand van essentiële voorzieningen als scholen, supermarkten en winkels, terwijl je maar vijf minuutjes hoeft te fietsen voor het bruisende stadscentrum en het centraal station. De uitvalswegen richting Waalwijk, Den Bosch en Breda zijn ook binnen 5 minuten te bereiken. Deze verrassend ruime tussenwoning biedt onder meer een sfeervolle woonkamer, een moderne keuken, drie volwaardige slaapkamers en een badkamer met toilet op de eerste verdieping. Opbergruimte heb je volop, daar zorgen de berging, de bijkeuken en de zolderruimte wel voor. Daarnaast kun je op het dakterras en in de onderhoudsvriendelijke tuin heerlijk van het buitenleven genieten.

Verder hebben in deze fijne woning de afgelopen jaren diverse renovaties plaatsgevonden. Zo is de volledige benedenverdieping voorzien van vloerverwarming, is in 2019 de cv-ketel vervangen, zijn eind 2022 alle plinten beneden vernieuwd en zijn in de keuken het fornuis en de oven in 2021 nieuw geplaatst. Goed om te weten: alle gordijnen, luxaflex en lampen worden ter overname aangeboden.

Ligging
Deze woning aan de Groeseindstraat staat centraal in de wijk Oud-Noord in Tilburg. Je woont hier in een gezellige buurt met veel authentieke panden en kenmerken en redelijk wat bedrijvigheid. De dichtstbijzijnde supermarkten en winkels bereik je al na een paar minuten lopen. Ook diverse basisscholen en middelbare scholen bevinden zich op loopafstand of (korte) fietsafstand. Het levendige stadscentrum ligt op ongeveer vijf minuten fietsen. Dat geldt ook voor het centrale treinstation van de stad. Reis je met de auto? Dan doe je er een kleine tien minuten over om op de uitvalswegen terecht te komen, zoals de provinciale wegen N65 en N261 en de snelwegen A58 en A65.

Begane grond
Na binnenkomst via de voordeur kom je eerst terecht in een ruime entree. Hier vind je de meterkast en vooral onder de trapopgang, genoeg ruimte om een kleine garderobe te creëren.

De entree biedt ook toegang tot de sfeervolle woonkamer die dit huis rijk is. Deze woonkamer is ruimschoots groot genoeg om zowel een gezellig zitgedeelte te creëren als een eettafel met stoelen te plaatsen. Van twee kanten zorgen grote raampartijen voor veel lichtinval. De straatkant is op het zonnige zuidoosten gericht. In het volledige woongedeelte vind je verder fraaie betegeling op de vloer. Dit is een ideale vloersoort voor het vloerverwarmingssysteem, waar je over deze volledige woonlaag van profiteert. Tenslotte zijn de muren in rustgevende kleuren afgewerkt.

Aan de achterkant van het woongedeelte bevindt zich de keuken. Via een halfhoge tussenmuur met bartafel is de keuken van de woonkamer afgescheiden. Qua apparatuur biedt deze modern ogende keuken onder andere een vaatwasser, een oven en een gasfornuis. Het fornuis en de oven zijn in 2021 vernieuwd.

Achterin de keuken vind je de toegangsdeur tot een ruime bijkeuken, die garant staat voor veel extra opbergruimte. Daarnaast vind je in de bijkeuken de cv-ketel (uit 2019) en aansluitpunten voor een wasmachine en een wasdroger. Ook zit in de bijkeuken de toegangsdeur tot een separate toiletruimte. Deze is compleet betegeld en voorzien van een zwevend toilet.

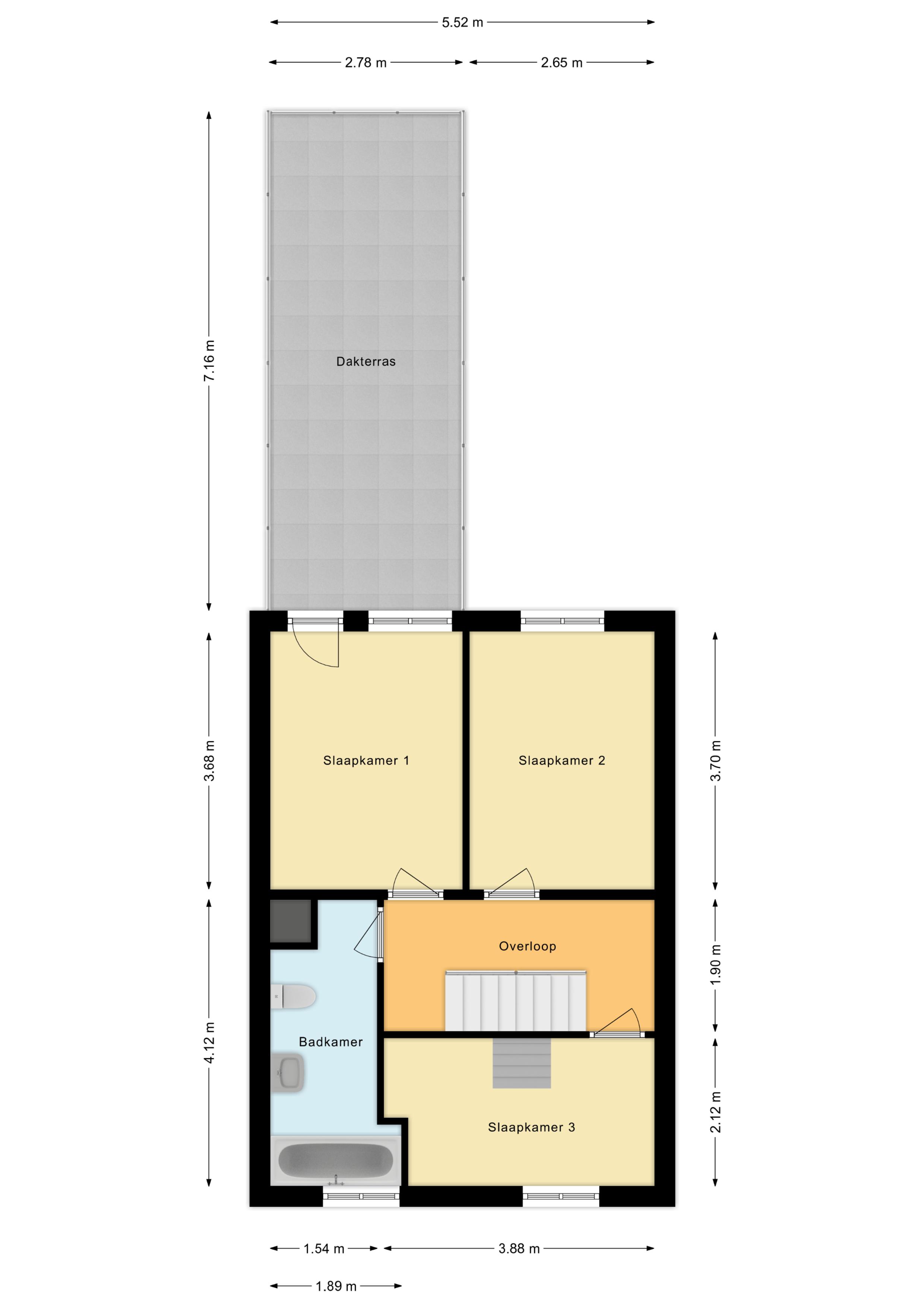
Eerste verdieping
In de entree begint de vaste trap die uitkomt op de overloop van de eerste verdieping. Van daaruit zijn vervolgens drie ruime slaapkamers te bereiken. Deze zijn stuk voor stuk uitgerust met een keurige laminaatvloer. Voor de muren is gekozen voor een afwisseling van neutrale en kleurrijke afwerkingen. Verder heb je vanuit één van slaapkamers aan de achterkant toegang tot een dakterras van bijna twintig vierkante meter groot. De kozijnen aan de achterzijde zijn ook voorzien val rolluiken.

Op de eerste verdieping heb je ook nog de beschikking over een mooie badkamer. Hier kun je gebruikmaken van een heerlijk ligbad, die ook is voorzien van een doucheaansluiting en glazen douchewanden. Daarnaast zijn een wastafel en een toilet voorhanden.

Tweede verdieping
Ook de bovenste woonlaag van dit huis is via een vaste trap te bereiken. Deze zolderverdieping bestaat in feite uit één grote ruimte, die bij uitstek geschikt is om als opslagplaats te benutten.

Tuin
Via een naar buiten openslaande deur heb je vanuit de bijkeuken toegang tot de tuin die bij deze woning hoort. Dit is een onderhoudsvriendelijke tuin die voornamelijk uit betegeling bestaat. Aan de achterkant van de tuin vind je een stenen berging die goed is voor dik zeven vierkante meter aan opbergruimte. Verder loopt vanuit de tuin een doorgang langs het huis. Via deze doorgang en een afsluitbare poort kom je weer op de Groeseindstraat uit.

Parkeren
Er is een parkeervergunningensysteem van toepassing.

Kenmerken
• Ruime eengezinswoning in gezellige, authentieke wijk Oud-Noord, op korte fietsafstand van het levendige stadscentrum van Tilburg.
• Alle gordijnen, luxaflex en lampen worden ter overname aangeboden.
• Cv-ketel vernieuwd in 2019.
• Gedeeltelijk kunststof kozijnen
• Alle plinten op de begane grond zijn eind 2022 vernieuwd.
• Vloerverwarming op de volledige benedenverdieping.
• Sfeervolle woonkamer met veel lichtinval.
• Moderne keuken met volop inbouwapparatuur, waarvan een deel in 2021 is vernieuwd.
• Snel internet met glasvezel
• Drie ruime slaapkamers.
• Gedeeltelijk rolluiken
• Comfortabele badkamer op de 1e verdieping met heerlijk ligbad.
• Toilet op begane grond en 1e verdieping
• Veel opslagruimte, waaronder in bijkeuken, op zolder en in berging.
• Zowel een dakterras als een onderhoudsvriendelijke tuin om van het buitenleven te genieten.
• Bouwjaar: 1935
• Volledige eigendom.