Koningsplein 309

5038 WK Tilburg € 340.000

Hartje centrum comfortabel gelijkvloers wonen in een modern, fraai afgewerkt en royaal (87m2) 3-kamerappartement gelegen op de tweede verdieping met overdekt balkon en eigen extra hoge berging en parkeerplaats. Gelegen in het mooie wooncomplex De Stadswachter II. Het modern en luxueus afgewerkt appartement bevindt zich op de tweede verdieping en heeft een living, open keuken, balkon, 2 slaapkamers en een luxe complete badkamer. De parkeerplaats en de berging liggen in de kelder van het gebouw. Bouwjaar 2015. Het appartement is ook zeker zeer geschikt voor senioren (brede gang en deuren, drempelloos).

Kortom: heerlijk wonen in hartje centrum met alle voorzieningen, zoals winkels, horeca, de weekmarkt, schouwburg en concertzaal om de hoek. Ook de vernieuwde Spoorzone en het aantrekkelijke Piushaven-gebied dragen bij tot de aantrekkelijkheid van de stad. Wonen, werken en recreëren gaan in het nieuwe Piushaven-gebied hand in hand, met de vernieuwde Piushaven als bloeiend middelpunt.

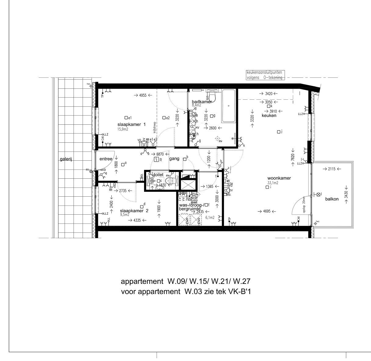
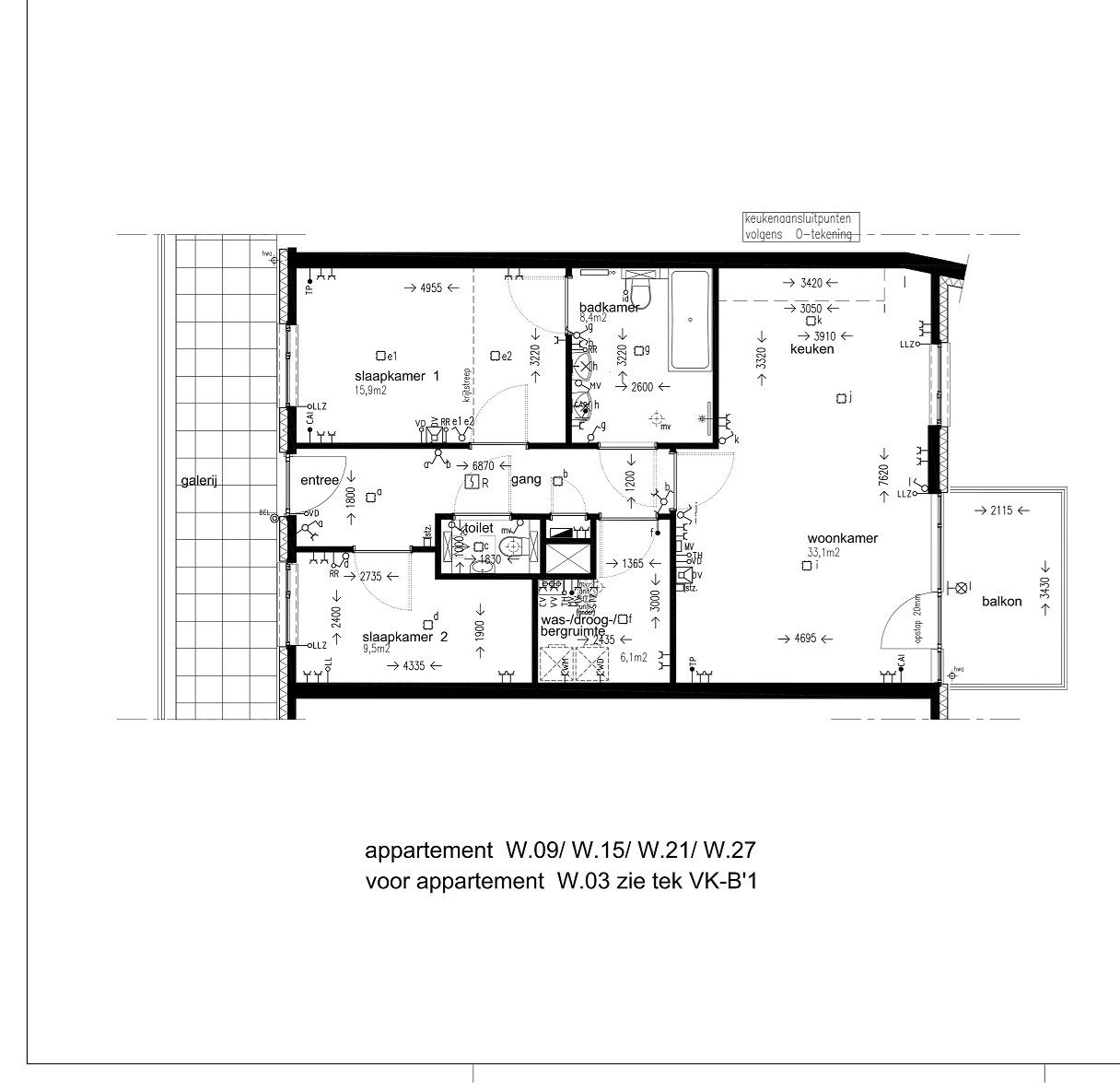
Indeling.
Op de begane grond bevindt zich de centrale entree hal met videofoon, bellentableau, brievenbussen en toegang tot de lift en het trappenhuis. 2e verdieping: Bovengekomen in de gezamenlijke hal die toegang geeft tot enkele appartementswoningen verkrijg je via een korte overdekte galerij voorzien van doorzichtige balustrade toegang tot de appartementswoning. De royale sfeervolle entree is afgewerkt met een pvc vloer, licht gestucte wanden en plafond. De hal met garderobe en meterkast geeft toegang tot twee net afgewerkte slaapvertrekken, toilet, badkamer, bergruimte en de woonkamer met open keuken en balkon. De luxe keuken is van Siematic, voorzien van een inductie kookplaat, combi oven, koelkast, vaatwasser, afzuigkap en granieten blad. Het appartement heeft twee slaapkamers, waarvan de hoofdslaapkamer toegang geeft tot de badkamer. Deze geheel betegelde badkamer is voorzien van een ligbad, inloopdouche, zwevend verhoogd toilet, 2 wastafels met spiegelwand en een designradiator. De toiletruimte is voorzien van zwevend toilet, urinoir en fonteintje. De bergruimte annex technische ruimte is voorzien van pvc vloer, opstelling combiketel (Intergas hre; 2015), unit mechanische ventilatie, stofzuigersysteem (Electrolux Beam, central vacuum system) en aansluiting voor de wasmachine.

Algemeen en afwerking.
De vloeren zijn voorzien van vloerverwarming en afgewerkt met fraaie pvc vloer. • Aluminium kozijnen en ramen voorzien van dubbele beglazing. • Het appartement heeft een videofoon en een centraal stofzuigersysteem. • Energielabel A. • Het gehele complex is voorzien van camerabeveiliging (kelder, entree en parkeergarage). • De parkeerplaats en berging zijn op niveau -01 gelegen. • Bijdrage VvE € 144,31 per maand (inclusief parkeerplaats). • Zeer sfeervol, instap klaar appartement.

Object gegevens
• Bouwjaar: 2015
• Gebruiksoppervlak wonen: ca. 87 m2
• Gebruiksoppervlak gebouw gebonden buitenruimte: ca. 7 m2 (balkon)
• Gebruiksoppervlak externe bergruimte: ca. 5 m2 (berging)
• Bruto inhoud: ca. 277 m3
• Bijdrage Vereniging van Eigenaren appartement € 108,15 per maand
• Bijdrage Vereniging van Eigenaren parkeerplaats € 36,16 per maand

Balkon
Overdekt balkon.