Molenstraat 32 Diessen

5087 BN Diessen € 975.000

Luxe, energiezuinig herenhuis aan de Molenstraat 32, Diessen. Instap klaar en tot in de puntjes afgewerkt. Bent u op zoek naar een instapklare, hoogwaardig afgewerkte woning in een rustige, groene omgeving? Deze vrijstaande woning aan de Molenstraat 32 in Diessen is werkelijk een pareltje. Voorzien van energielabel A en klaar om zo in te trekken. Het bijgebouw is onderverdeeld in een garage/multifunctionele ruimte, maar kan ook in gebruik worden genomen als bijvoorbeeld een mantelzorgwoning of praktijkruimte aan huis. De ruimte is voorzien van een eigen cv-installatie en toilet. Perfecte ligging: Molenstraat 32 ligt op korte afstand van alle voorzieningen die Diessen te bieden heeft. Supermarkten, scholen, sportfaciliteiten en gezellige restaurants liggen op steenworp afstand. Bovendien ligt Diessen centraal tussen Tilburg en Eindhoven, wat zorgt voor een uitstekende bereikbaarheid via de snelwegen en openbaar vervoer.

BIJZONDERHEDEN VAN DE WONING:

  • Riant, sfeervol herenhuis met inhoud van circa 776 m³.
  • Op loopafstand van dorpscentrum.
  • Ideaal voor gezin met meerdere kinderen.
  • Mogelijkheid voor wonen en werken.
  • Laadpaal voor elektrische auto.
  • Hoog afwerkingsniveau.
  • Zonnepanelen
  • Energieklasse A.
  • Huidige garage geschikt voor meerdere doeleinden.
  • Nabij basisschool en dorpscentrum met dagelijkse voorzieningen.
  • Op circa 10 minuten fietsen van de Vrijthof in Hilvarenbeek
  • Op circa 10 autominuten van het centrum van Tilburg en op circa 20 autominuten van Eindhoven Airport gelegen.

KENMERKEN:

  • Bouwjaar: 2002
  • Kadastrale grootte 850 m²
  • Woonoppervlakte 237 m²
  • Inhoud 800 m³

BEGANE GROND:

De fraaie ontvangsthal geeft toegang tot de sfeervolle woonkamer, eetkamer, keuken met kelderkast, toilet en trapopgang naar de eerste verdieping. Het toilet is betegeld en voorzien van hangtoilet en fontein. Woonkamer De sfeervolle woonkamer in L-vorm is zeer ruim te noemen met uitzicht op de mooie tuin welke te bereiken is via opslaande tuindeuren.

De woonkamer is voorzien van een open haard in de juiste stijl die de sfeer zeker verhoogd . Vanuit de woonkamer is er toegang tot de keuken. De gehele begane grond is voorzien van vloerverwarming, convectorput, strak stucwerk en 2,75 meter hoge plafonds.

Keuken
De keuken in landhuis stijl is voorzien van houten fronten en het binnenwerk is van multiplex met HPL toplaag. Het granieten blad, stollen en de schouw maken het geheel helemaal af. De keuken is voorzien van een brede inductie kookplaat , inbouw-afzuigkap, combi-oven, vaatwasser en een koelkast. Alle apparatuur is van het A-merk Bosch. Vanuit de keuken is er toegang tot de eetkamer middels een toog, kelderkast en via de hal met grote bergkast bereikt u de tuin.

Eetkamer
Deze sluit perfect aan bij de keuken en is ook zeer ruim te noemen. De servieskast is ook doorgetrokken in de stijl van de keuken.

EERSTE VERDIEPING:

De overloop geeft toegang tot de vier ruime slaapkamers, badkamer en separate toilet. Ook deze verdieping is geheel voorzien van stucwerk.

Slaapkamers
Twee slaapkamers aan de linkerzijde van de woning en twee slaapkamers aan de rechterzijde.
De slaapkamers aan de linkerzijde zijn voorzien van een ideale inkoopkast.

Badkamer
De ruime badkamer is zeer praktisch ingedeeld, gedeeltelijk betegeld en voorzien van een kunststof whirlpool-hoekligbad, een inloopdouche, radiator en twee wastafels. De vloerverwarming zorgt ervoor dat er altijd een behaaglijke temperatuur mogelijk is.

Toilet
Ideaal is het separate toilet in dezelfde stijl als de badkamer en het toilet op de begane grond.

TWEEDE VERDIEPING:

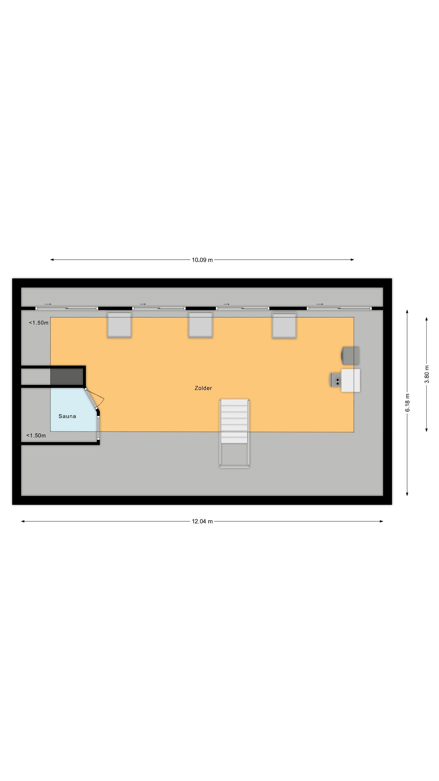
Via de open trap op de overloop is de nette zolder te bereiken die over de volle breedte van de woning loopt. De zolder is voorzien van een sauna, opstelling cv-ketel, 3 zolderramen 2 radiators en aansluiting wasmachine en wasdroger. Er is extra ruimte gecreëerd d.m.v. de schotten voorzien van deuren. Vanzelfsprekend is de zolder geheel geïsoleerd.

BUITEN DE WONING

De grote, fraai aangelegde achtertuin is de ideale plek om te ontspannen of te genieten van zonnige dagen met familie en vrienden. De tuin biedt veel privacy en heeft een gezellige overdekte zithoek, een groen gazon en verschillende beplantingen en grote plavuizen die de tuin een mooie uitstraling geven. Tevens biedt de tuin aan de rechterzijde een ruime berging uit 2022 voorzien van elektra. Aan de linkerzijde staat nu de vrijstaande garage met elektrische deur en aansluiting voor de elektrische auto die nu dienst doet als garage/schuur met toilet en een aparte studio. De ruimte is ook voorzien van een vliering, zijdeur, 3 ramen, dakraam en een eigen cv-installatie, dus eventueel makkelijk te gebruiken voor andere doeleinden. Bent u benieuwd naar deze woning? Plan dan snel een bezichtiging en ervaar zelf de charme van Molenstraat 32. Dit is een unieke kans om in een rustige, kindvriendelijke omgeving te wonen met alle voorzieningen binnen handbereik.

Overzicht

Vraagprijs € 975.000
Woonoppervlakte 237 m²
Perceeloppervlakte 850 m²
Kamers 4 slaapkamers
Status Te Koop
Bouw Vrijstaande woning