Sint Willebrordstraat 29

5014 CA Tilburg € 362.500

APPARTEMENTENGEBOUW WILLEBRORDUS Het appartementencomplex is gelegen in de wijk Loven-Besterd achter de voormalige Willibrorduskerk, op loopafstand van het stadscentrum, het Centraal Station en diverse uitvalswegen. In de nabijheid zijn diverse voorzieningen zoals winkels, sportvoorziening en openbaar vervoer.

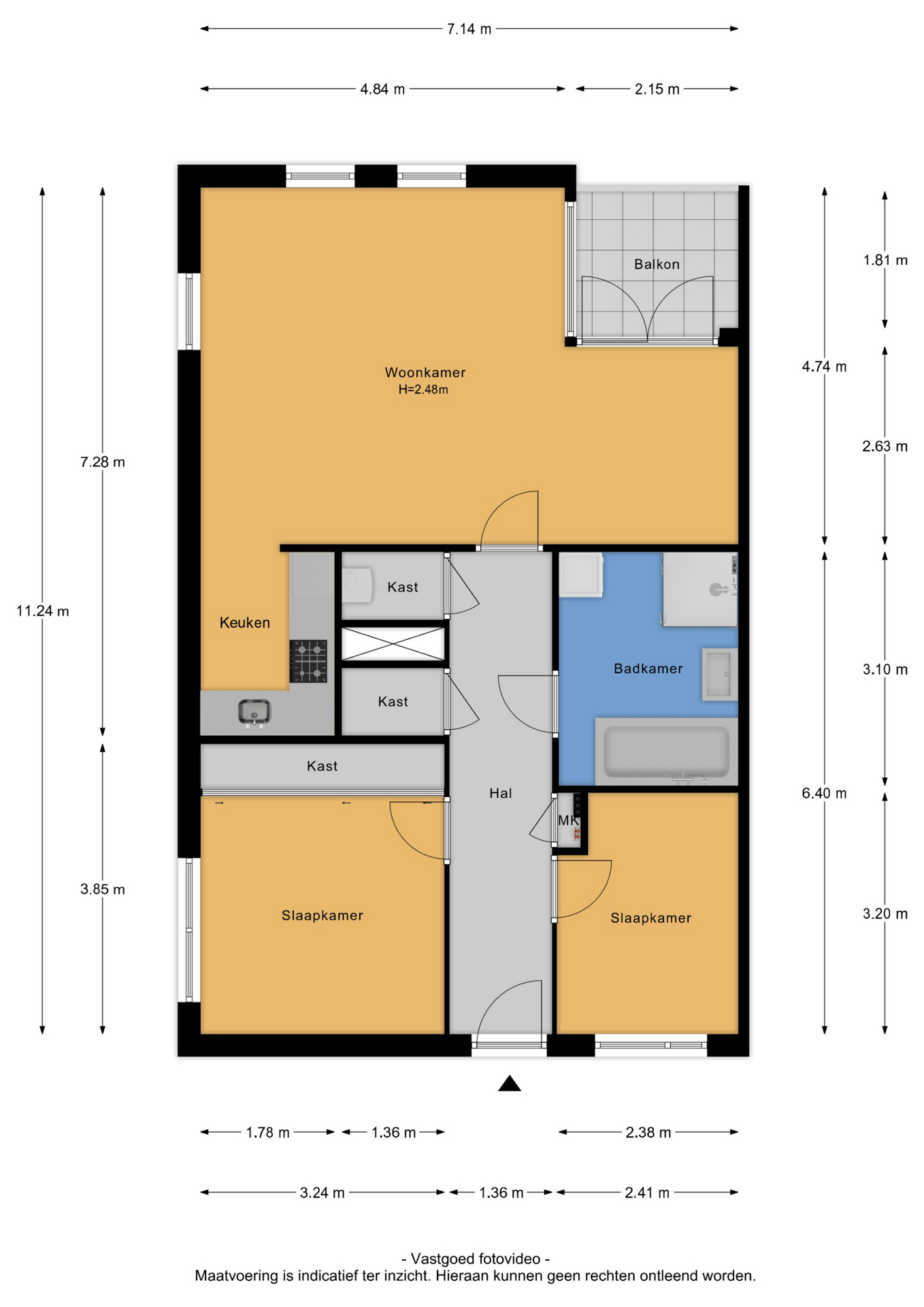
Het appartementencomplex is voorzien van een liftinstallatie en beschikt over een elektrisch bedienbare toegangspoort. Omschrijving Op de 2e verdieping gelegen 3-kamer appartement met balkon, berging en een eigen parkeerplaats! Vanuit het appartement en balkon heeft u een vrije uitzicht op het Sint Willebrordplein. Indeling: Begane grond: Gemeenschappelijke entree met bellentableau, brievenbussen en videofooninstallatie. De centrale hal biedt toegang tot de liften. Inpandige bergingen en gezamenlijke fietsenstalling. Aparte oprit naar de parkeerplaatsen. Entree: Entree / hal met meterkast en videofoon installatie. Berging Aparte bergkast en kast met opstelling cv-ketel. Woonkamer Lichte woonkamer welke goed in te delen is met deur naar balkon. Balkon Inpandige balkon met een vrije uitzicht op het pleintje. Keuken Open keuken in lichte kleurstelling en hoekopstelling is voorzien van bovenkasten, vaatwasser en kookplaat. Slaapkamers Twee slaapkamers welke goed zijn ingedeeld. Badkamer De licht betegelde badkamer is uitgerust met een douche, toilet, vaste wastafel en wasmachine-aansluiting. Bijzonderheden: - Servicekosten ca. € 174,00 per maand. - Aparte berging en vaste parkeerplaats. - Enkel eigen bewoning toegestaan. Deze voorwaarde wordt ook opgenomen in de akte van levering. - Projectnotaris van toepassing. - Aan deze presentatie kunnen geen rechten ontleend worden. Extra parkeerplaats te huur voor € 35,00 per maand.