Spaendonck woning C.003

5014DE Tilburg € 415.000

Deze ruime aantrekkelijke woningen met tuin en/of dakterras op het verborgen zijn uniek voor het centrum van Tilburg. Aangrenzend stadsparkje.

Overzicht

Vraagprijs €415.000
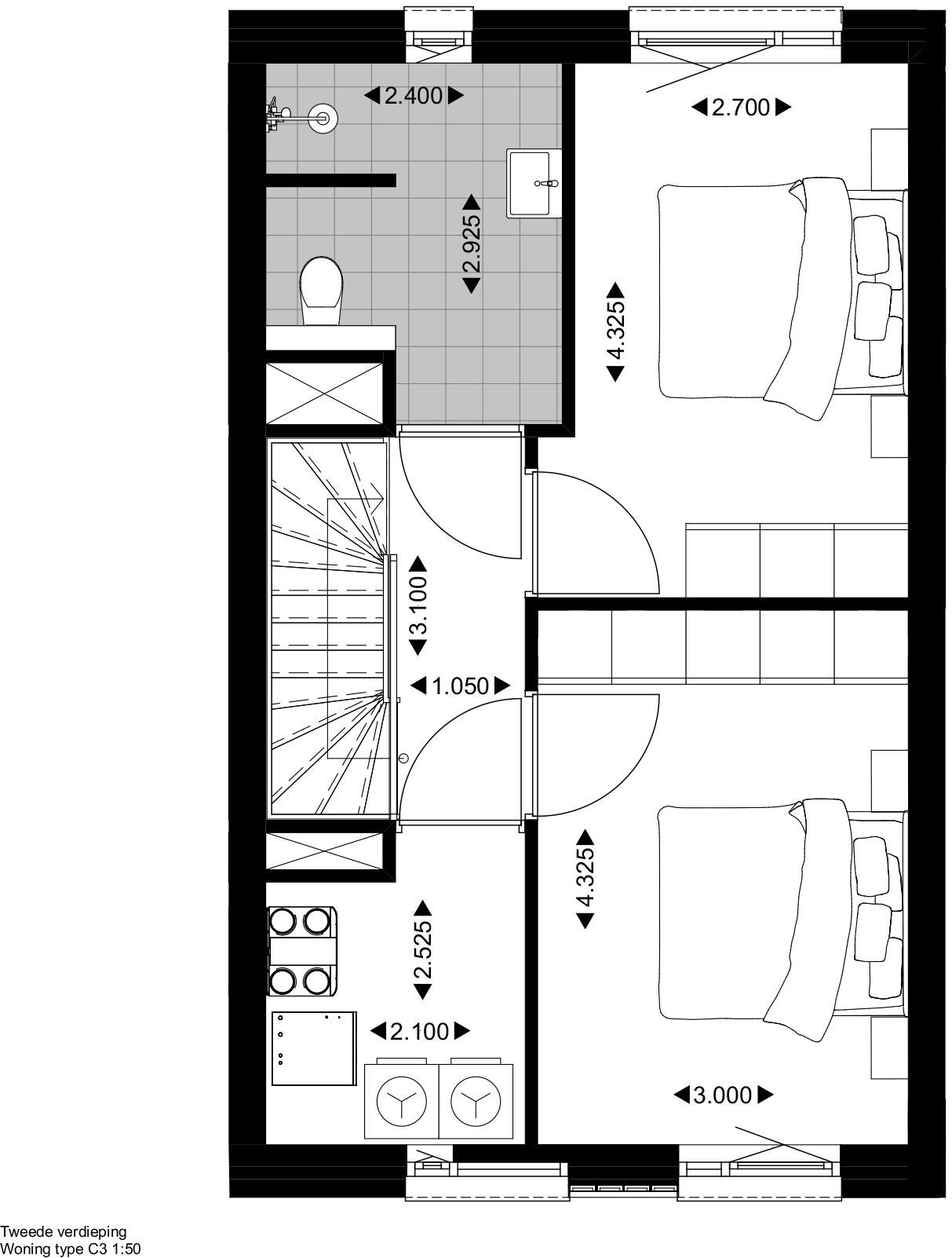
Woonoppervlakte 99 m²
Kamers 4
Status Te Koop
Bouw Nieuwbouw