Spaendonck woning D.102

5014DE Tilburg € 377.000

Tussen de Rozenstraat en het park ligt het woongebouw Weverij. De 14 koopappartementen zijn ruim opgezet, hebben veel daglicht en beschikken over een loggia.

Verdiepingshoge puien garanderen een fraai uitzicht op het park. Daarnaast geven de fraaie ritmiek van de metselwerk gevels en de grote gevelopeningen de woning een modern, industrieel karakter. De 3-kamerappartementen verschillen in grootte en oriëntatie en het parkeren is gemeenschappelijk gelegen in een overdekte parkeervoorziening achter het woongebouw.

Overzicht

Vraagprijs € 377.000
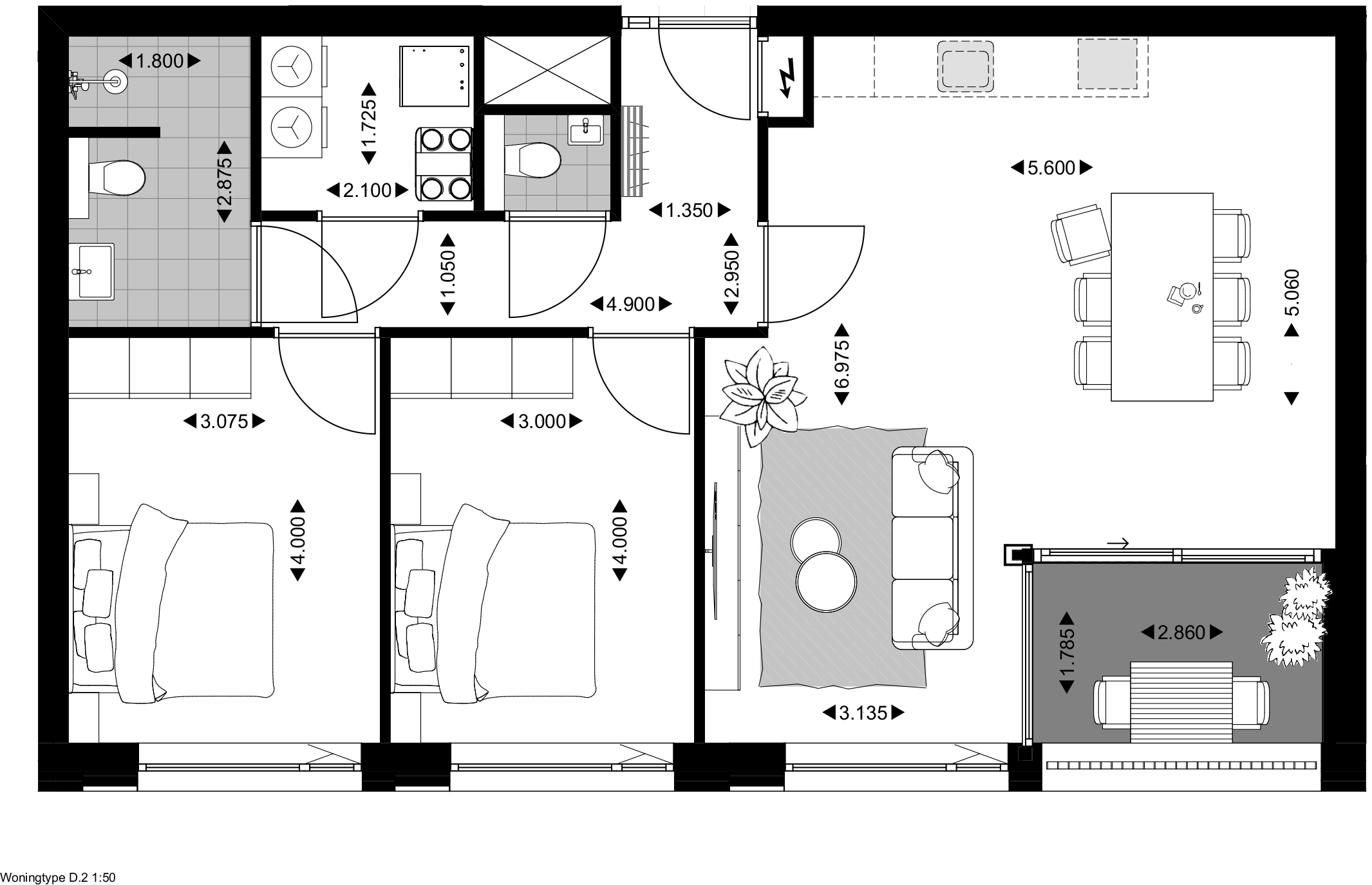
Woonoppervlakte 80 m²
Kamers 3
Status Te Koop
Bouw Nieuwbouw
Loggia Op het zuidwesten
Berging Inclusief