Spaendonck woning E.004

5014DE Tilburg € 483.000

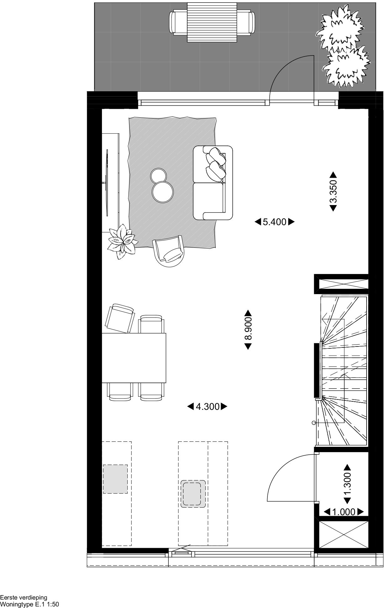
Dit bijzondere woningtype is net wat anders ingedeeld dan normaal en het biedt daarmee allerlei mogelijkheden om je eigen twist te geven aan de woning. Het heeft namelijk de woonkamer met open keuken op de eerste verdieping, grenzend aan een ruim dakterras. En een werkkamer aan de straatzijde.

Unieke en speelse indeling
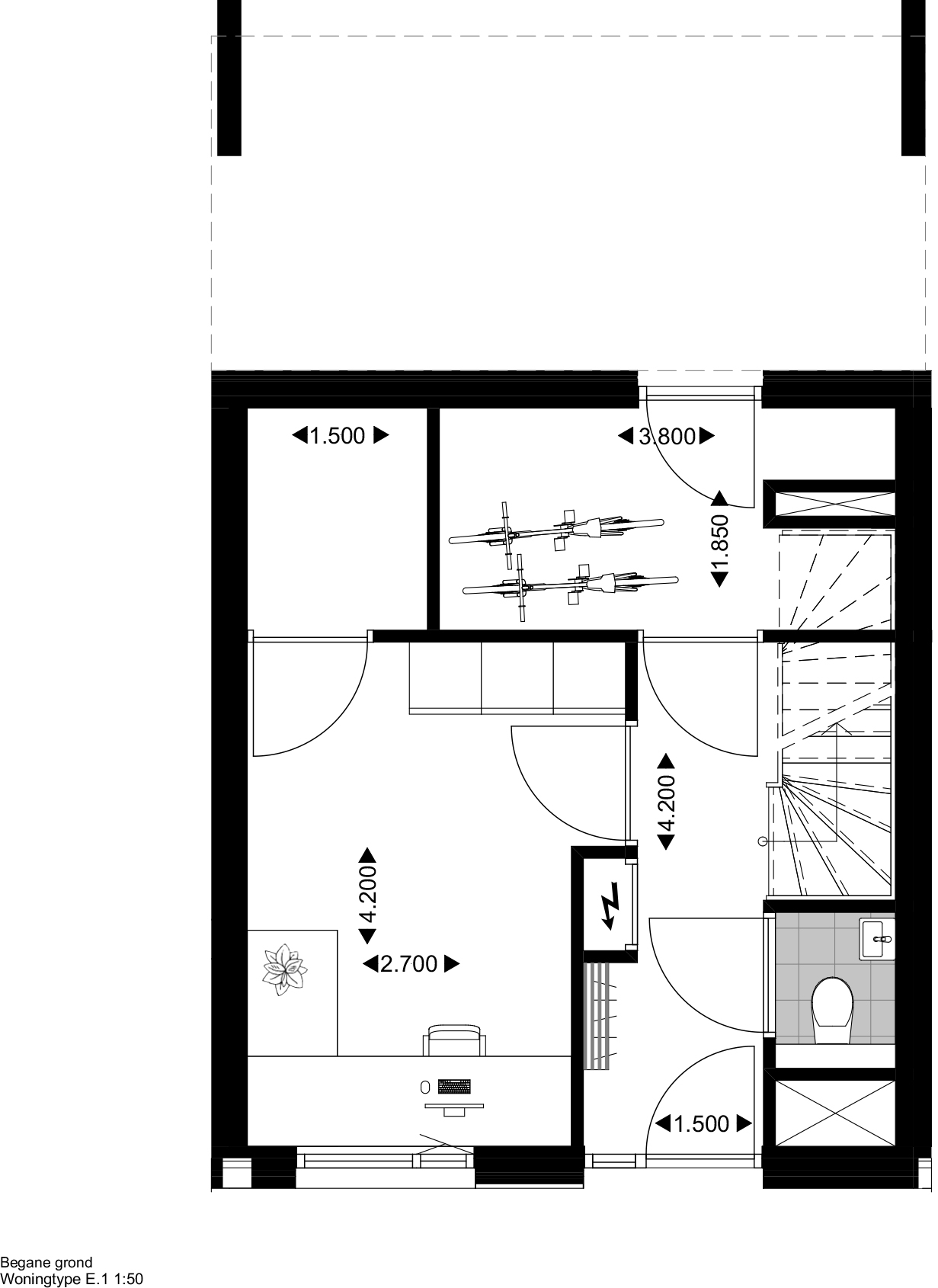
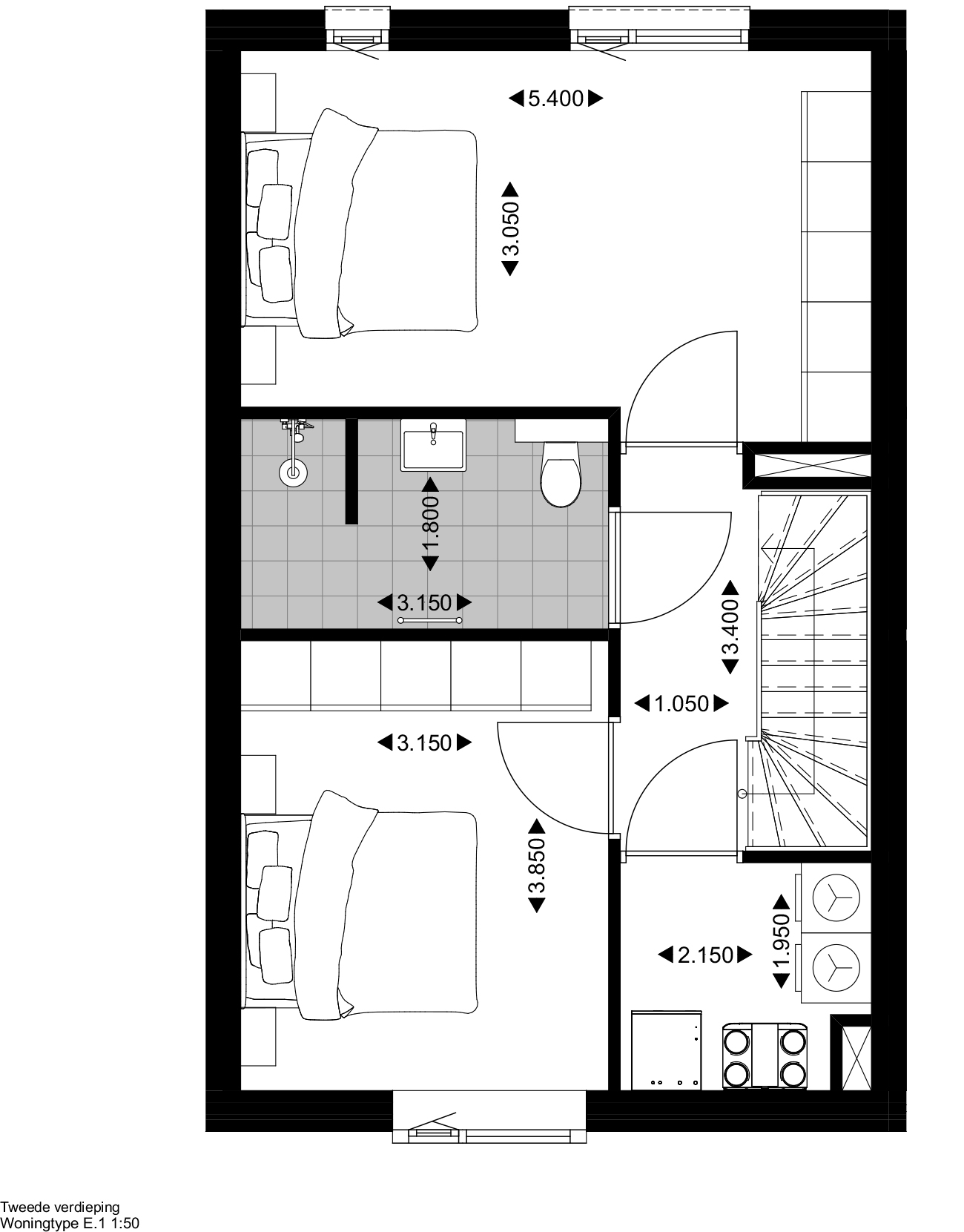
Twee hoofdslaapkamers en ruime badkamer zijn gelegen op de tweede verdieping. Aan de straat liggen de woningtoegang en een verblijfsruimte die dienst kan doen als werkkamer met pantry of als slaapkamer met badkamer en suite. Op de begane grond heeft iedere woning bovendien een eigen buitenberging die bereikbaar is van binnenuit en grenst aan de gemeenschappelijke overdekte parkeervoorziening.

Overzicht

Vraagprijs € 483.000
Woonoppervlakte 128 m²
Kamers 4
Status Te Koop
Bouw Nieuwbouw
Optie Schuifpui naar dakterras
Extra Badkamer op de begane grond
Uniek Woonkamer en keuken op de 1e verdieping