Spaendonck woning E.006

5014DE Tilburg € 353.000

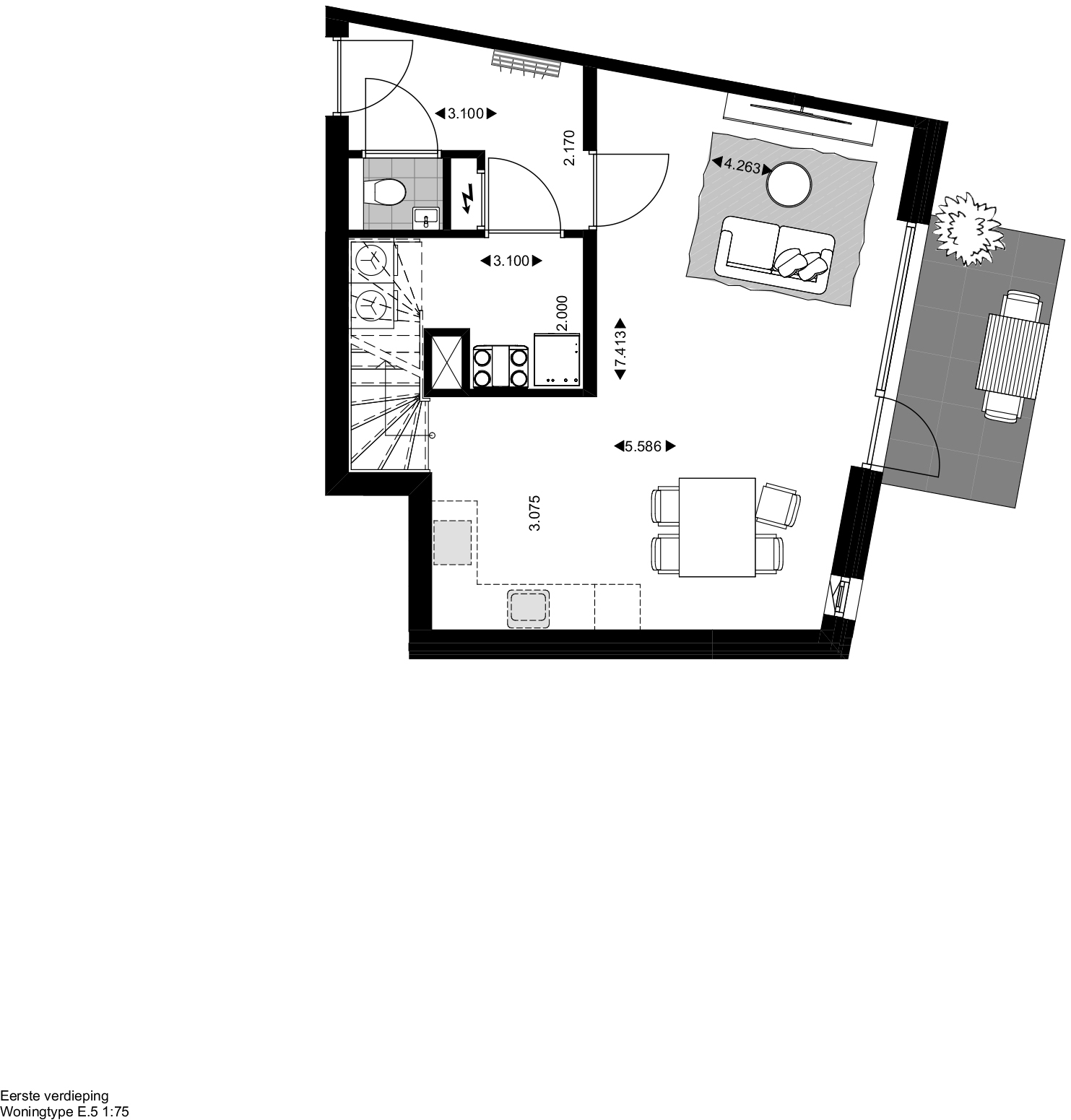
Dit bijzondere woningtype is net wat anders ingedeeld dan normaal en het biedt daarmee allerlei mogelijkheden om je eigen twist te geven aan de woning. Het heeft namelijk de woonkamer met open keuken op de eerste verdieping, grenzend aan een ruim dakterras. En een werkkamer aan de straatzijde.

Unieke en speelse indeling
Twee hoofdslaapkamers en ruime badkamer zijn gelegen op de tweede verdieping. Aan de straat liggen de woningtoegang en een verblijfsruimte die dienst kan doen als werkkamer met pantry of als slaapkamer met badkamer en suite. Op de begane grond heeft iedere woning bovendien een eigen buitenberging die bereikbaar is van binnenuit en grenst aan de gemeenschappelijke overdekte parkeervoorziening.

Overzicht

Vraagprijs € 353.000
Woonoppervlakte 83 m²
Type Benedenwoning
Kamers 3
Toestand Koop
Bouw Nieuwbouw
Berging Inclusief
tuin Op het oosten
Uniek Kleine woning met ruime tuin