Spaendonck woning F.001

5014DE Tilburg € 329.000

Prominent op de kop van het park ligt woongebouw Kettingscheerderij met enerzijds de Seringenhof en anderzijds de Weverskaarde. Woningblok bestaat uit 6 gezinswoningen en 14 appartementen.

Deze eengezinswoningen hebben een uitbouw optie van 120 en 180 cm en een optie voor een schuifpui naar de tuin. Er is tevens een mogelijkheid om een extra slaapkamer te realiseren op de bovenste etage.

Overzicht

Vraagprijs € 329.000
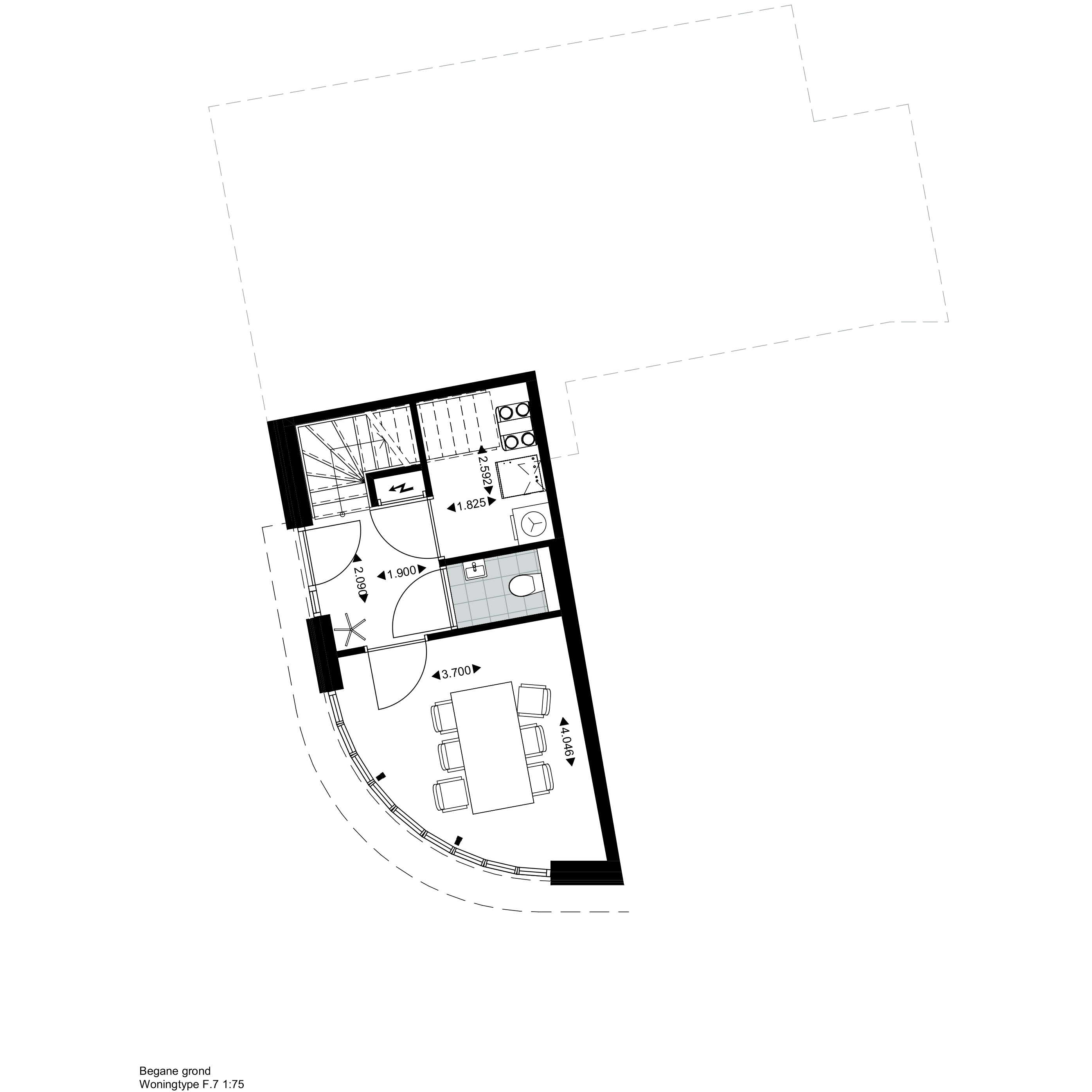
Woonoppervlakte 73 m²
Kamers 3
Type Bovenwoning
Bouw Nieuwbouw
Balkon Aan de luwe achterzijde
Berging Inclusief
Uniek Zicht op Seringenhof