Spaendonck woning F.009

5014DE Tilburg € 439.000

Prominent op de kop van het park ligt woongebouw Kettingscheerderij met enerzijds de Seringenhof en anderzijds de Weverskaarde. Woningblok bestaat uit 6 gezinswoningen en 14 appartementen.

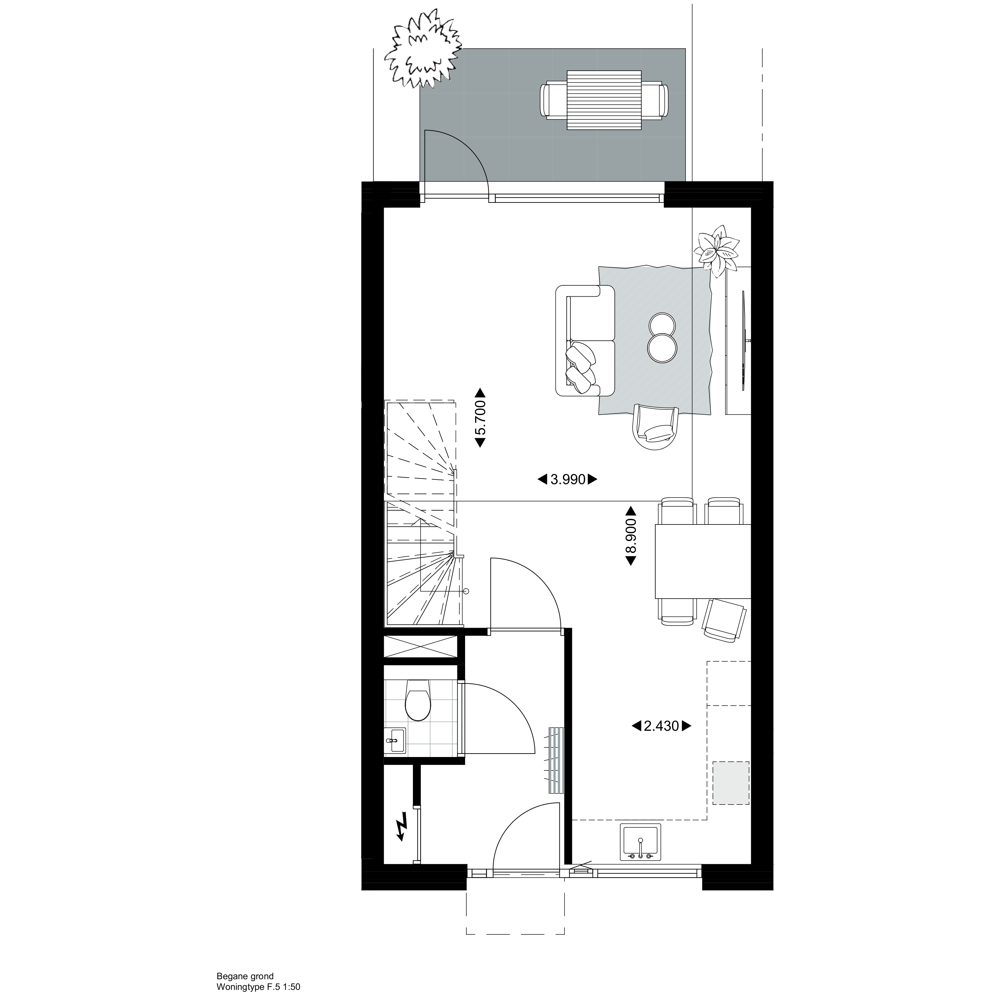
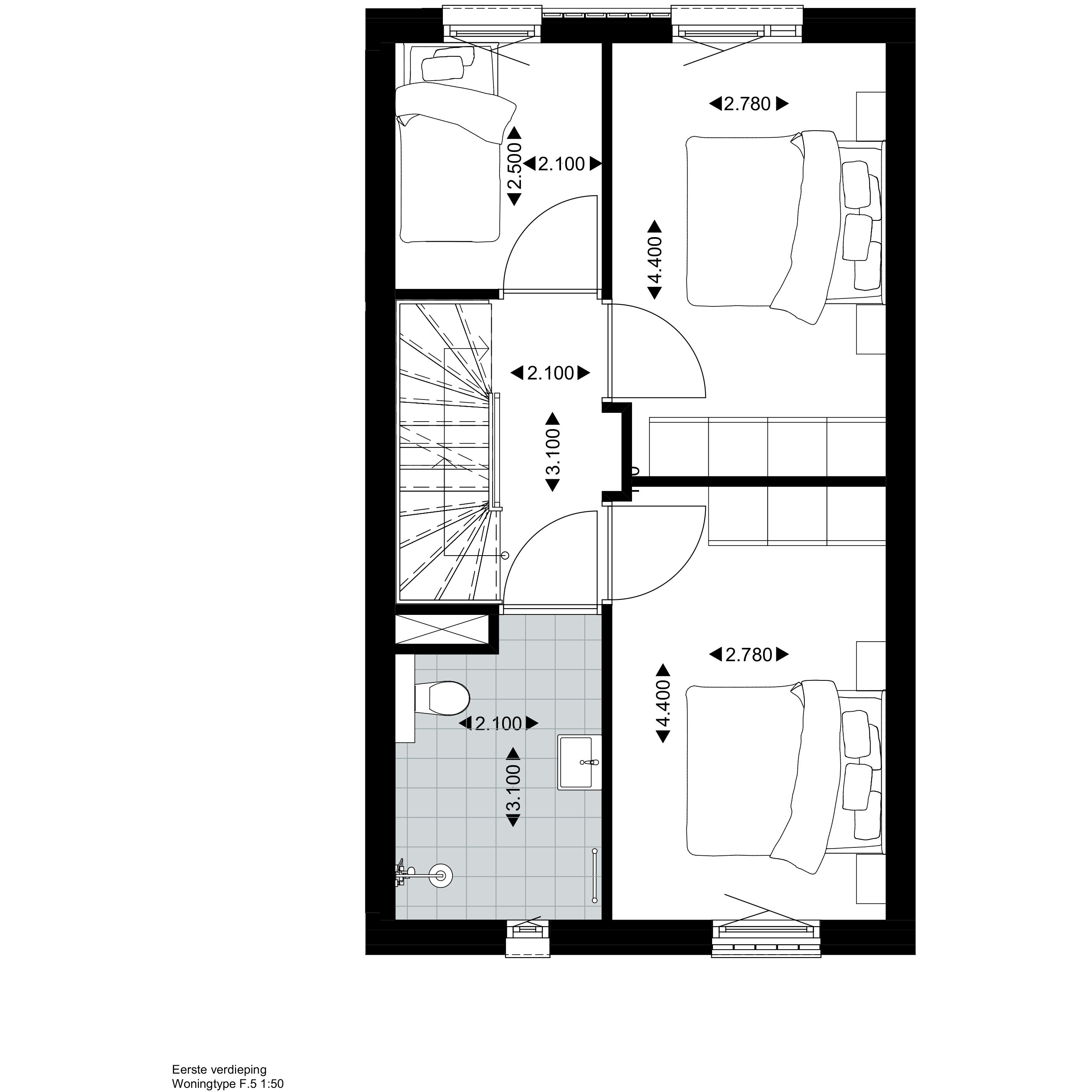
Deze eengezinswoningen hebben een uitbouwoptie van 120 en 180 cm en een optie voor een schuifpui naar de tuin. Er is tevens een mogelijkheid om een ​​extra slaapkamer te realiseren op de verhoogde verdieping.

Overzicht

Vraagprijs € 439.000
Woonoppervlakte 118 m²
Perceeloppervlakte 103 m²
Kamers 5
Bouw Nieuwbouw
Tuin Op het oosten
Berging Inclusief
Uitbouw Opties 120cm en 180cm
Schuifpui Optie schuifpui naar tuin
Extra Optie 1 extra slaapkamer zolder

Woning configurator

Kies uw gewenste uitbouw

Standaard
+ € -
Uitbouw + 120 cm
+ € -
Uitbouw + 180 cm
+ € -

Woning aanzicht

Buiten
Binnen
Plattegrond
foto
foto
foto
Buiten
Binnen
Plattegrond
foto
foto
foto
Buiten
Binnen
Plattegrond
foto
foto
foto