Valkenswaardstraat 19

5036 SG Tilburg € 369.000

De wijk Koolhoven ligt aan de zuidzijde van de Reeshof. Door de nieuwe rondweg zijn de uitvals-/ en snelwegen richting Breda, Eindhoven en Waalwijk makkelijk te bereiken. Er wonen veel gezinnen in de wijk en voorzieningen zoals een basisschool, kinderopvang en gezondheidscentrum zijn aanwezig. Ook het treinstation, bushalte, winkelcentrum Dalem en De Heyhoef, voetbal-, zwem- en andere sportverenigingen liggen in de directe omgeving.
De wijk is voorzien van veel groenstroken en speelvoorzieningen voor de kinderen.
Tevens wandel je zo het natuurgebied de Donge in en het centrum van Breda is binnen 15 minuten te bereiken.

Indeling:

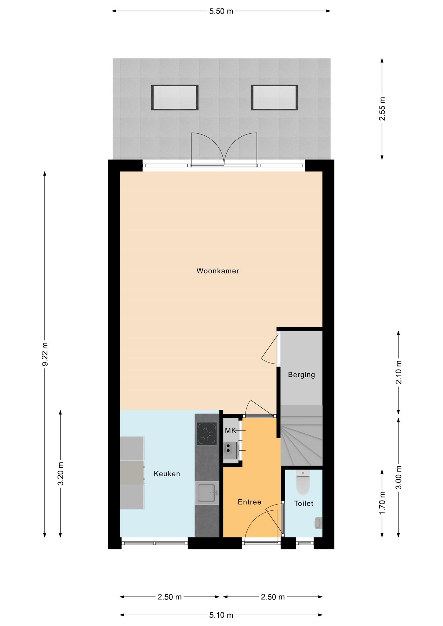
Begane grond:
- Hal/entree met meter- en groepenkast
- Toiletruimte voorzien van closet, spiegel en fontein
- Ruime tuingerichte woonkamer voorzien van mooie pvc vloer en een ruime bergkast onder de trap
- Openslaande tuindeuren
- Keuken in parallel opstelling met granieten blad en Bosch inbouwapparatuur: grote koelkast, losse vriezer, combimagnetron, RVS afzuigkap, inductie kookplaat, quooker en vaatwasser.

1e verdieping:
- Bereikbaar via houten trap voorzien van vloerbedekking
- Ruime vliering
- Gehele verdieping voorzien van houten laminaat vloer
- 3 slaapkamers waarvan één met dakkapel
- Badkamer geheel betegeld en voorzien van douche, radiator en wastafel met spiegel
- Aparte toiletruimte voorzien van closet en fonteintje

2e verdieping:
- Bereikbaar via houten trap
- Multifunctionele ruimte, geschikt als slaapkamer en of werkkamer
- Voorzien van laminaat vloer
- Mechanische ventilatie-unit en de aansluitingen t.b.v. de wasapparatuur
- Twee ramen en velux dakraam

Voortuin:
- Nette aangelegde voortuin met sierbestrating en heg

Achtertuin:
- Overkapping met twee lichtkoepels en voorzien van twee heaters
- Ligging op het noorden
- Onderhoudsvrij
- Sierbestrating en kunstgras
- Grote stenen berging
- Nette houten afscheiding
- Buitenkraan en stopcontacten aanwezig

KENMERKEN EN BIJZONDERHEDEN:
- Bouwjaar 2007
- Inhoud ca. 410 m3
- Woonoppervlakte ca. 120 m2
- Perceel 177 m2
- Zeer geliefde woonwijk
- Alle voorzieningen binnen handbereik
- Volledig geïsoleerd en dubbel beglaasd
- Overkapping met twee lichtkoepels en twee heaters
- Eigen achterom naast de woning
- Aanvaarding 01 oktober 2022

Wonen in een van de meest gewilde wijken van Tilburg? Zoekt u juist een karakteristieke woning? Dan zou dit wel een uw kans kunnen zijn.