Weteringstraat 10 Breda

4818 LG Breda € 435.000

Ben jij op zoek naar een woning vol karakter gelegen op een schitterende toplocatie in de gewilde wijk Zandberg nabij het Ginneken. Dan is deze woning zeker geschikt voor jou.
Deze sfeervolle en verrassend ruime woning is voorzien van een woonkamer met open haard, wenteltrap, semi-open keuken met openslaande tuindeuren, badkamer, 4 slaapkamers en een achtertuin met grote stenen berging en achterom.

De Weteringstraat is een doodlopende straat, dus heerlijk rustig. U wandelt zo naar de gezellige Ginnekenweg met haar vele restaurantjes en gevarieerd winkelaanbod, het bruisende stadscentrum, Wilhelminapark en Ginnekenmarktje. Ook de scholen en sportactiviteiten, zoals tennis en voetbal, zijn op loopafstand.
Ook bereikt u binnen enkele autominuten de autosnelweg richting Rotterdam, Tilburg, Utrecht en de prachtige natuurgebieden aan de zuidkant van Breda, zoals het Mastbos, Ulvenhoutse Bos en het Markdal.

Laat u verrassen door deze prachtige woning. Ook nog op deze locatie !!

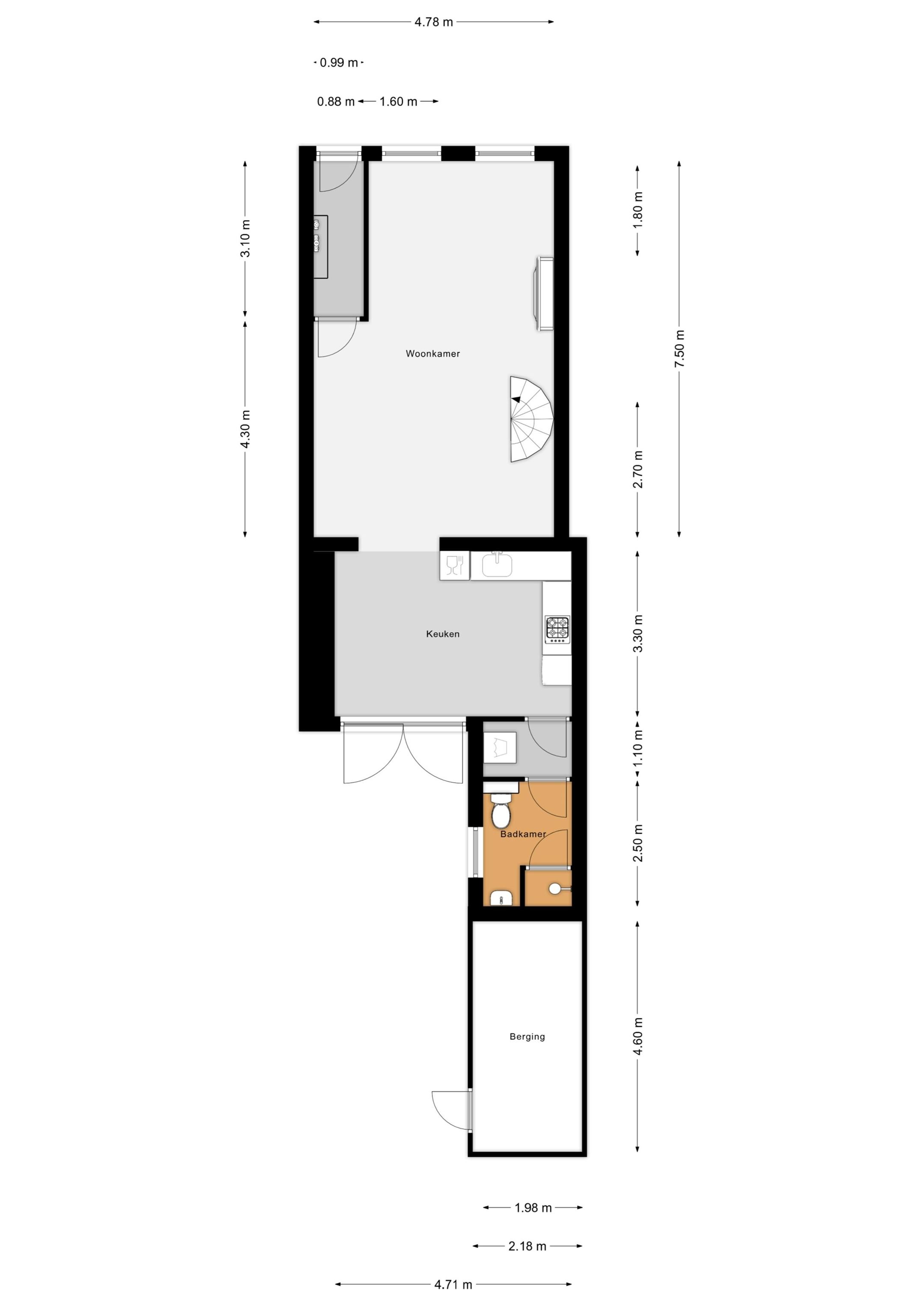
Indeling
Via de lichte hal voorzien van mooi weggewerkte meterkast en sfeervolle verlichting bereik je de woonkamer. Wat je meteen zal opvallen is de sfeer die de huiskamer met openhaard uitstraalt en de ruimte !! Het hoge plafond werkt hier zeker aan mee. De vloer is voorzien van een wit geschilderde laminaatvloer. Via de huiskamer bereik je de nette semi-open keuken die van alle gemakken is voorzien. In de keuken is ook genoeg ruimte voor een flinke eetkamertafel. Vanuit de keuken bereik je de badkamer, die is voorzien van een douche, zwevend toilet, wastafel en radiator. Tussen de keuken en badkamer is een afgesloten ruimte die geschikt is voor de wasmachine en eventueel wasdroger. Achter de woning kun je de nette betegelde plaats met achterom en ruime stenen berging bereiken via de openslaande tuindeuren. De achterom is zeer breed, dus ook geschikt voor een motor.

Eerste verdieping
Op de eerste verdieping bevinden zich maar liefst 4 ruime slaapkamers en een ruime inbouwkast op de overloop. Op 1 slaapkamer bevindt zich een ook nog vide waar ruimte is voor een bed. Via de buitendeur van de achterste slaapkamer bereikt u het vernieuwde plat dak, die zeker geschikt is als terras. De andere slaapkamer aan de achterkant heeft een frans balkon. Alle kamers zijn voorzien van inbouwspots en dimmers.

Tweede verdieping
Via de vlizo trap bereik je de nette zolder, die geheel geisoleerd is.

Balkon
Aan de achterzijde van de woning bevindt zich een frans balkon.

Tuin
De tuin is netjes en geheel betegeld en heeft een achterom. Via de tuin bereikt je de stenen berging die vast zit aan de woning.

Bijzonderheden

De NEN 2580 meetnorm is een eenduidige meetnorm, waarbij met bepaalde richtlijnen rekening gehouden wordt. Zo wordt o.a. een zolder zonder vaste trap of met een lichtoppervlakte (bv dakraam) kleiner dan 0,5 m² niet tot de woonoppervlakte gerekend. Hierdoor kan de woonoppervlakte soms kleiner lijken dan de daadwerkelijke vloeroppervlakte en kleiner lijken dan bij vergelijkbare woningen waar de makelaar de meetnorm niet toe heeft gepast. Ondanks het feit dat de meetnorm verplicht is, hanteren niet alle makelaars consequent de norm. MTB Makelaardij laat haar woningen inmeten door een erkend bedrijf. Het meetrapport van deze woning is dan ook, indien gewenst, ter inzage.