Zoom 31 oisterwijk

5061RA Oisterwijk € 369.000

Op een van de mooiste plekken van de Pannenschuur staat deze hoekwoning met 3 slaapkamers (mogelijkheid tot 4), een zeer ruime garage en een prachtige achtertuin op het zonnige zuiden.

De uitgestrekte bossen en vennen zijn vlakbij en binnen tien minuten zit je in de natuur of in het pittoreske centrum. Oisterwijk, de Parel van Brabant, heeft een grote diversiteit aan winkels, een variatie aan speciaalzaken, restaurants en sportaccommodaties. Oisterwijk biedt naast basisonderwijs ook voortgezet onderwijs aan van VMBO tot VWO. Via de uitvalswegen A58 en N65 zijn steden als Tilburg, Breda en Eindhoven snel te bereiken. Oisterwijk heeft tevens een trein- en busstation.

Deze woning biedt vele mogelijkheden.

Indeling:

Via de fraai aangelegde voortuin kom je bij de entree die toegang geeft tot de hal met meterkast en toilet en de deur naar de woonkamer met veel lichtinval en openslaande tuindeuren.

De half open keuken heeft een hoekopstelling met groot gasfornuis en wokpit, vaatwasser en combimagnetron. Ook vanuit hier kun je naar de mooi aangelegde tuin op het zuiden, dus veel zonuren gegarandeerd.

Vanuit de tuin is er toegang tot de zeer ruime garage, waar naast de auto genoeg ruimte overblijft voor fietsen en hobby’s. De garage is voorzien van elektra.

Via een trap in de huiskamer kom je op de eerste verdieping met drie slaapkamers en de badkamer met douche, ligbad, wastafel en toilet.

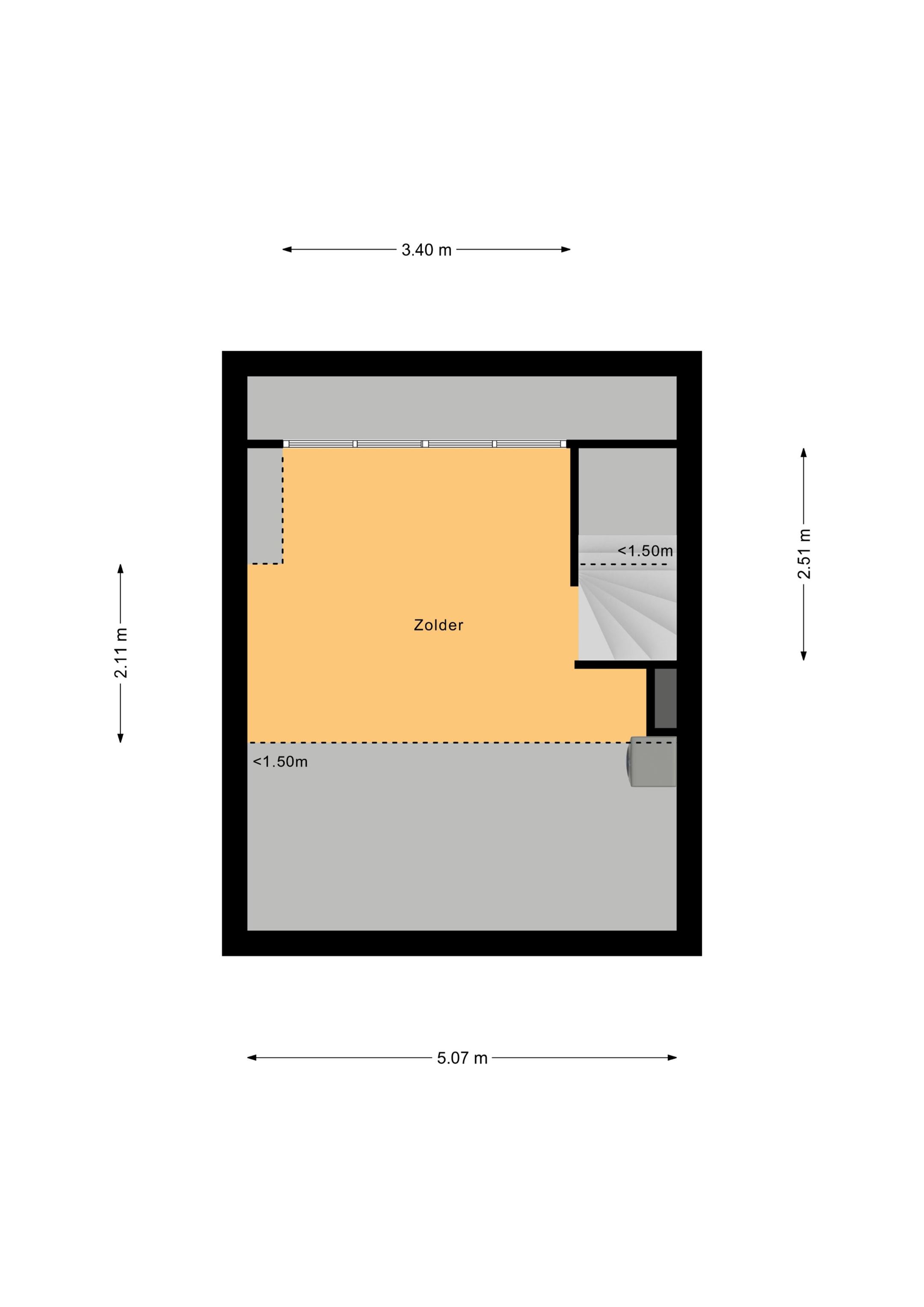
De trap brengt ons opnieuw naar de volgende verdieping, een ruime zolder met een dakkapel. Een vierde slaapkamer is hier te realiseren of een rustige werkplek.

Bijzonderheden:

Woning is voorzien van zonnepanelen
De huiskamer en masterslaapkamer zijn voorzien van een koele airco in de zomer
Kindvriendelijke buurt
Garage is bereikbaar via de tuin en straatzijde
Volledig voorzien van dubbel glas

De NEN 2580 meetnorm is een eenduidige meetnorm, waarbij met bepaalde richtlijnen rekening gehouden wordt. Zo wordt o.a. een zolder zonder vaste trap of met een lichtoppervlakte (bv dakraam) kleiner dan 0,5 m² niet tot de woonoppervlakte gerekend. Hierdoor kan de woonoppervlakte soms kleiner lijken dan de daadwerkelijke vloeroppervlakte en kleiner lijken dan bij vergelijkbare woningen waar de makelaar de meetnorm niet toe heeft gepast. Ondanks het feit dat de meetnorm verplicht is, hanteren niet alle makelaars consequent de norm. MTB Makelaardij laat haar woningen inmeten door een erkend bedrijf. Het meetrapport van deze woning is dan ook, indien gewenst, ter inzage.